切换到宽版
  • 13阅读
  • 2回复

[奇观]成都七中(林荫校区)学科融合中心改造 / 中国建筑西南设计研究院[50P] [复制链接]

上一主题 下一主题
在线jjybzxw

UID: 551814

 

发帖
231513
金币
775449
道行
2006
原创
2456
奖券
3420
斑龄
43
道券
1516
获奖
0
座驾
设备
摄影级
在线时间: 49316(小时)
注册时间: 2008-10-01
最后登录: 2026-03-05
只看楼主 倒序阅读 楼主  发表于: 昨天 11:00
— 本帖被 xgch 执行加亮操作(2026-03-04) —





△ 成都七中(林荫校区)学科融合中心改造©阎渊
01.
引言:当教育变革遇上城市记忆
成都七中,这座拥有百廿年历史的名校,以其“人文滋养,个性成长”的教育理念,培养了以多位院士为代表的众多杰出人才。林荫校区作为其核心本部,承载着一代代学子的青春记忆,也深植于成都的城市文化脉络之中。

△ 学科融合中心区位与周边现状©中建西南院
伴随学校的不断发展,既有校舍已无法满足日益多元的教育理念与空间需求,学校拟将临科华路的两栋原对外出租建筑(勤工楼与博雅楼)收回,改造为承载音乐、美术、科学、技术等多元学科教学的学科融合中心。

△ 学科融合中心鸟瞰©阎渊
校舍的改造不仅关乎学校的发展,更牵动着无数校友与市民的情感。如何注入现代功能与绿色改造理念,同时在改造中保留这份珍贵的场所记忆,是本次工程的重要使命,也是对这座百年名校历史与文化的传承与致敬。

△ 城市界面更新效果©阎渊
02.
被反复涂抹的立面
位于校园南端的勤工楼与博雅楼,始建于上世纪80年代,先后做过电脑卖场、廉价酒店,立面被广告牌和“民国风”装饰反复覆盖,内部空间逼仄、布局零散,难以适配现代教学需求,像一段被反复涂抹的磁带。

△ 学科融合中心原貌©中建西南院
博雅楼作为长145米、纵向连续31跨的超长横向单跨建筑,被鉴定为Csu级危房;且地铁3号线从负12米处正线穿越,带来持续振动干扰;加固的同时还需要抗震隔振设计;消防疏散也因为年代原因,无法满足现行规范;机电设施陈旧老化,裸露混乱,无法支撑新的智能化教学;建筑内外多次改造后也已与原图纸出入较大;外侧紧邻市政道路,内侧紧贴校园操场,施工操作面极度紧张;这些都给改造带来巨大挑战。

△ 科华路改造前后对比图 ©阎渊

△ 科华路改造前后透视对比图 ©阎渊

△ 校内侧改造后实景对比 © 阎渊
03.
“举”重若“轻”
问题最多的博雅楼,设计的答案是“轻介入”:保留框架,卸掉荷载,把楼轻轻抬起来——用于改造的全国首例“三维隔震支座”被植入老楼,水平向隔震、垂直向隔振,地铁带来的振动得以衰减百分之八十,抗震性能更是提升到重点设防类。为了安装支座,整栋楼先被千斤顶顶起,支撑的钢管承担二层以上仅保留框架的全部重量,安装完成之后,再进行下一步工序。

△ 三维隔震支座安装完成图 ©阎渊

△ 三维隔震支座完成后首层公共空间©阎渊
04.
流动的学科融合发生器
结构松一口气之后,空间开始流动。改造原有狭窄通道和楼梯,并将两栋楼联通,形成“二层科技、三层音乐、四层美术”的垂直学科带;原来1.1米的走廊被拓宽至2.1米,在合适位置放大处理。

△ 改造后局部剖透视©中建西南院

△ 走道空间改造前后对比©阎渊

△ 改造后走道空间 ©阎渊
每层设置主题学科展示空间和学生交流空间,结合上下贯通的开敞楼梯,形成水平与纵向相互渗透的开放交流场所,增强空间通透感与连续性。

△ 展示空间©阎渊

△勤工楼首层展厅©阎渊

△勤工楼首层门厅©阎渊
教室不再固定,活动隔断5分钟即可完成“分—合”切换,可以每间教室独立授课,也可以合并成跨班级大教室,应对多样化的教学场景,提升空间利用率,也提供个性化学习与交流体验。同时在勤工楼5楼和6楼各设置学科融合教室及教师研修中心,提供更多舒适交流空间。

△ 灵活布局的教学空间示意©中建西南院

△活动隔断教室©阎渊

△ 合唱教室 ©阎渊

△ 戏曲教室©阎渊
05.
天空美术馆
我们希望在满足学校功能要求的基础上,为校园留下具有独特有记忆点的空间。相比其他框架固定的楼层,原本由轻质铁皮临时搭建、可以向天空发展的博雅楼顶层是最具突破潜力的空间。
为避免对原有基础增加过多重力荷载,并快捷准确地完成主体建造,设计选用钢结构在顶层重建美术教室和 “天空美术馆”。白墙、波浪状的屋顶与北向天窗,在开阔的美术展厅中,可以直接感受到光线的柔和与空间的浪漫。师生作品可以在此轮换展出,也可以移至一层临街横向橱窗,入夜亮灯后,行人将在不经意间,与一幅十七岁的画作不期而遇。


△天空美术馆©阎渊

△ 设有沿街橱窗的临街界面©阎渊
技术上屋面的钢梁延长,从悬挑端向下延伸吊柱,从上部吊起了二、三层拓宽部分1米宽的走廊楼板。如此一来,既解决了拓宽部分重力无法落地的问题,也因悬挑端的荷载,减少了顶层钢梁的跨中弯矩。

△博雅楼校内侧墙身©中建西南院

△ 开放美术研讨空间©阎渊

△ 美术展厅©阎渊

△ 美术办公室©阎渊
06.
“不网红”的功能化立面
立面没有“网红”冲动。设计把校园既有红、白、灰砖元素按照比例抽象成三条水平色带,转译为立面上同色的穿孔铝板——既解决了学科融合中心的正东西晒问题,也隔绝了科华路高架和操场的大部分噪音;穿孔铝板后暗藏通风窗扇和新增的空调外机,以解决功能问题为导向对立面进行提升。

△ 校内一侧,改造后的立面融入校园既有建筑群©阎渊
质轻、易维护的铝穿孔板搭配色彩丰富多样的闪银氟碳喷涂工艺,呼应城市历史文脉的同时,也为校园提供了科技感十足的未来气息。板距经过视线模拟,确保1.2米到1.9米视域无遮挡;同时在公共空间处穿孔板通过角度调节成水平状,视线更是完全打开,也为整个过长的立面提供一些节奏变化。

△ 宽敞的走廊与放大休息区©阎渊
穿孔铝板的色彩也同样经过考量。七中校徽的主要元素是银杏叶,我们从银杏叶不同季相的色彩中获取灵感,将由黄转橙、继而变红的色彩,由上至下排布在立面上,使立面色彩丰富又统一,成为学校和而不同的“表情”。

△ 游泳馆下方看博雅楼©阎渊
△ 校徽与银杏叶©中建西南院

△ 科华路立面局部©阎渊
勤工楼则是另一种情况。因其原始结构条件相对较好,设计选择了相对克制的改造策略——未将其所有围护结构拆除,仅将立面材料焕新,并在合适位置开窗保证采光。建筑上部主要采用了竖纹铝板,延续博雅楼金属板的质感和旁边家属区宿舍的横向条窗的肌理的同时,也增加一些二次质感的细节。

△ 勤工楼校外侧改造后实景对比 ©阎渊

△ 校园内侧透视 ©阎渊

△ 竖纹铝板肌理©阎渊
07.
集成化设计
解决完结构和疏散的安全性问题和立面的美观问题后,还有很多集成化设计的小巧思来进行建筑性能提升和完成度控制。

△ 勤工楼、博雅楼技术路径图©中建西南院
集成化设计首先体现在系统的重构上。楼栋西侧原有的露天泳池因地铁工程已停用,并被盖上木板改作露天羽毛球场。
本次改造保留了上部的活动场地功能,同时充分利用下方泳池原本的容积与防水基础,将其转化为消防水池及泵房,实现了存量空间的高效复用。电系统从宏观和微观层面进行能耗控制。宏观层面供配电系统在满足需求时部分利旧——博雅楼沿用原系统,勤工楼新设。

△ 泳池上方改造后透视©阎渊
微观层面考虑以人为本进行成本控制——在人员使用频率较少的机房区设置就地开关;人员使用频率高、有场景变化需求的大空间、走廊、楼梯间采用智能照明控制系统进行集中控制管理,以满足使用者的个性化需求。勤工楼顶新设屋顶太阳能光伏系统,充分利用可再生能源发电。这些举措很好地实现闲置设施再利用,有效降低了改造成本。

△ 勤工楼校内侧墙身构造 ©中建西南院
其次,集成化设计也体现在立面上。立面穿孔板背后设置可开启扇,保证室内的通风又不会破坏立面完整性。穿孔板外侧结合加岩棉金属板挑檐,形成自遮阳系统,有效减少太阳直射,降低室内得热。该挑檐同时具备隔声与吸音功能,可缓解东侧科华高架及西侧操场的噪声干扰。

△ 勤工楼校内侧改造前后对比©阎渊
此外,吸音金属挑檐可兼作反光板,改善建筑较暗区域的光环境,提升室内舒适度。勤工楼层高较低,我们采用设于窗边的分布式新风器与电动排烟窗减少水平风管对空间高度的挤占,保证净高和空间品质。通过这些被动式措施,实现遮阳、采光与通风一体化,显著改善声、光、热环境。
再者,集成化设计也体现在机电管线和建筑、结构、幕墙、装饰的紧密协作上。博雅楼平面不大,但由于建设标准的提高以及独特的锯齿天窗排水,建筑内部存在较多给水、屋面楼面落水、消防给水、空调凝水等各类水管,以及必备的电气和暖通管线,各类管线错综复杂,综合密度极高。

△ 集成幕墙与排水设计图©中建西南院
且结构梁柱因加固而断面增大,已经挤占了室内空间,为尽可能减少机电管线对室内空间的侵占,我们将各类给排水管线布置于建筑外墙外侧和有条件吊顶区域,并结合结构、幕墙的模数,将其统筹于外墙之外、立面穿孔板之后,并将其色彩进一步调暗,加强其与外侧银白色水平铝板的明度差异,使其消隐入背景墙面。如此一来,室内的使用空间得以完整、高效(不会因各种包管、检修而影响室内使用),服务设施的分散化布置保证了被服务空间的完整高效,且不影响立面效果。

△ 临街界面,管线隐于立面穿孔铝板之后 ©阎渊
还有一点特别的集成化设计是因为隔振带来的问题:因主体结构被三维支座断成了上下两部分,但所有的立管上下都需要跨越这结构断开所形成的“横缝”,如果不加注意,地震过后,恐会出现水管(上下水、消防水)大量错动开裂的情况;而若所有立管都按抗震柔性连接,对观感和成本影响又巨大。

△ 断接雨水口完成图©阎渊
针对这个问题,我们“水”分两路。将消防、给水系统上下分开;一层横管走地面,二至四层横管走勤工楼上楼后再横向走通,不共用立管。排水节点通过巧妙设计的断接雨水口“接水兜”,将结构变形量统筹其中,保证在最大变形范围之内,“接水兜”都能“兜”住插入其中的排水管。并在外侧,设计带有学校纹饰的穿孔板,将这一巧妙节点,以装饰的语言表现出来。

△ 管线集成校园内立面效果©阎渊
08.
尾声:夹缝里的轻革命
七中林荫学科融合中心改造提升项目面积不大,但“麻雀虽小,五脏俱全”。不仅是教学理念与建筑理念的碰撞融合,更涉及建筑、结构、机电、幕墙、装饰等多个专业的协作。我们期待借由此次改造,为同学们创造更加丰富、生动的学习体验,激发同学们对素质拓展的兴趣和探索欲,增强对校园的认同和归属感。
我们希望借助林荫七中在教育界的影响力,通过本次“轻介入”策略的改造提升,在延续校园文脉记忆、植入未来教育空间基因的同时,倡导并探索一种经济普适的价值观和技术路径,一种校园建筑改造的新范式:在空间、规范、造价三重夹缝里,用技术精准松绑,让空间回到教育本身。
百廿名校的记忆被保留,新的故事刚刚写入。

△ 改造后的成都七中©阎渊
设计图纸 ▽

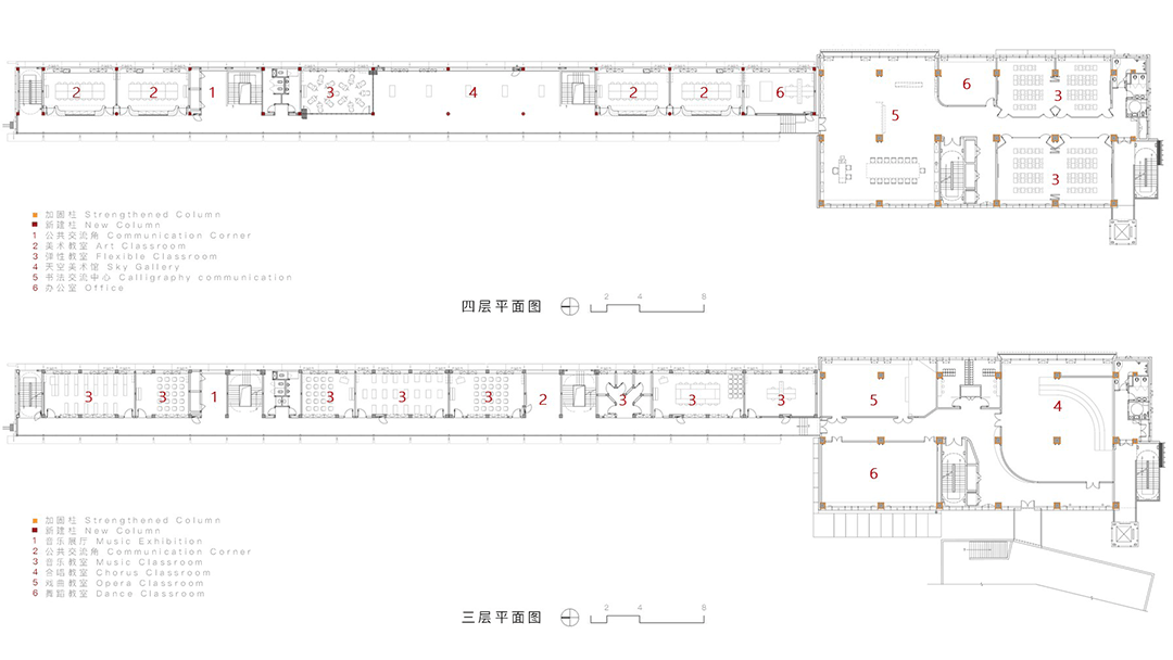
△ 总平面图 ©中建西南院

△ 一、二层平面图 ©中建西南院

△ 三、四层平面图 ©中建西南院

△ 剖面图 ©中建西南院

△ 立面图 ©中建西南院
项目名称:成都七中(林荫校区)学科融合中心改造
项目地点:四川成都武侯区
设计时间:2021年6月-2024年5月
建成时间:2025年
用地面积:1433㎡
建筑面积:7768㎡
业主单位:四川省成都市第七中学(易国栋、赵敏、陈帅、陈泉、门维婷)
代理业主:成都城投教育投资管理集团有限公司(倪宇、杨斌杰)
设计单位:中国建筑西南设计研究院有限公司(前方工作室、华东创研中心、设计四院)
项目团队:
· 设计总负责人:黄怀海
· 设计副总负责人:黎琳璘
· 建筑专业:阎渊 宋然 林有为 钟易岑 胡静雯 王舒悦 李姗霓 何沁洋
· 结构专业:高永东 宗晓庆 陈宇豪
· 给排水专业:叶磊 蒲金晶
· 暖通专业:刘玉东 贺礼荣
· 电气专业:姚锋 陆萌 余洁 雷兰
· 幕墙专业:周春晓 刘芳萍 彭伟
· 建筑技术:史尤佳
· 建筑经济:孟祥臻 王香平
室内施工图合作单位:湖北金海螺装饰有限公司(杨燕芬、苏亚文、刘夏红、祁恒)
施工单位:中国五冶集团有限公司(李沛林、赵中华、杨均、卢德新)
品牌:四川南玻节能玻璃有限公司;洁福地板(中国)有限公司;立邦涂料(成都)有限公司;成都凡德罗家具有限公司
3条评分金币+35
xgch 金币 -35 加错了 昨天 19:32
xgch 金币 +35 辛苦了,感谢您无私奉献的精神! 昨天 19:31
xgch 金币 +35 辛苦了,感谢您无私奉献的精神! 昨天 18:26
山庄提示: 道行不够,道券不够?---☆点此充值☆
 
在线jjybzxw

UID: 551814


发帖
231513
金币
775449
道行
2006
原创
2456
奖券
3420
斑龄
43
道券
1516
获奖
0
座驾
设备
摄影级
在线时间: 49316(小时)
注册时间: 2008-10-01
最后登录: 2026-03-05
只看该作者 沙发  发表于: 昨天 11:02
成都七中(林荫校区)学科融合中心改造:在传承中创新的教育空间变革
引言:教育变革与城市记忆的交织
成都七中作为拥有百廿年历史的名校,秉持“人文滋养,个性成长”的教育理念,培养了众多杰出人才。林荫校区作为核心本部,承载着无数青春记忆,融入城市文化脉络。随着学校发展,既有校舍难以满足多元教育需求,学校决定将临科华路的勤工楼与博雅楼改造为学科融合中心,这一改造既要注入现代功能与绿色理念,又要保留场所记忆,是对学校历史文化的传承与致敬。
改造背景:老旧建筑的困境与挑战
勤工楼与博雅楼始建于上世纪80年代,曾被用作电脑卖场、廉价酒店等,立面被反复覆盖,内部空间逼仄、布局零散,难以适配现代教学需求。博雅楼更是问题重重,作为超长横向单跨建筑,被鉴定为Csu级危房,地铁3号线穿越带来持续振动干扰,消防疏散、机电设施等方面均存在问题,且建筑内外与原图纸出入大,施工操作面紧张,给改造带来巨大挑战。
改造策略:多维度创新与突破
“举”重若“轻”:三维隔震支座的应用
针对博雅楼的问题,设计采用“轻介入”策略,植入全国首例“三维隔震支座”,实现水平向隔震、垂直向隔振,使地铁振动衰减百分之八十,抗震性能提升到重点设防类。安装过程中,整栋楼被千斤顶顶起,支撑钢管承担重量,安装完成后再进行下一步工序。
流动的学科融合发生器:空间优化与功能升级
改造原有狭窄通道和楼梯,联通两栋楼,形成垂直学科带,拓宽走廊并在合适位置放大处理。每层设置主题学科展示空间和学生交流空间,结合开敞楼梯形成开放交流场所。教室采用活动隔断,可灵活切换“分—合”模式,应对多样化教学场景,提升空间利用率。同时设置学科融合教室及教师研修中心,提供更多交流空间。
天空美术馆:顶层空间的突破与利用
博雅楼顶层原本由轻质铁皮临时搭建,设计选用钢结构重建美术教室和“天空美术馆”。白墙、波浪状屋顶与北向天窗营造出柔和光线与浪漫空间,师生作品可在此展出或移至临街橱窗。技术上通过钢梁延长和吊柱解决拓宽部分重力落地问题,减少顶层钢梁跨中弯矩。
“不网红”的功能化立面:文化传承与功能提升
立面设计摒弃“网红”风格,将校园既有红、白、灰砖元素抽象成三条水平色带,转译为穿孔铝板立面,解决正东西晒和噪音问题,暗藏通风窗扇和空调外机。穿孔铝板色彩从银杏叶不同季相色彩中获取灵感,丰富又统一。勤工楼则采用相对克制的改造策略,焕新立面材料并开窗保证采光,上部采用竖纹铝板增加质感细节。
集成化设计:细节之处见真章
空间高效复用:泳池改造消防水池
楼栋西侧原有露天泳池因地铁工程停用并改作羽毛球场,改造保留上部活动场地功能,将下方泳池转化为消防水池及泵房,实现存量空间高效复用。
能耗控制:电系统优化与太阳能利用
电系统从宏观和微观层面进行能耗控制,博雅楼沿用原供配电系统,勤工楼新设;机房区设置就地开关,大空间等采用智能照明控制系统;勤工楼顶新设屋顶太阳能光伏系统,降低改造成本。
立面性能提升:遮阳、通风与隔声一体化
立面穿孔板背后设置可开启扇,外侧结合加岩棉金属板挑檐形成自遮阳系统,减少太阳直射,降低室内得热,同时具备隔声与吸音功能,吸音金属挑檐可兼作反光板,改善光环境。勤工楼采用分布式新风器与电动排烟窗,保证净高和空间品质。
机电管线协作:消隐于立面
博雅楼内部管线错综复杂,将各类给排水管线布置于建筑外墙外侧和有条件吊顶区域,结合结构、幕墙模数统筹于外墙之外、立面穿孔板之后,并调暗色彩使其消隐入背景墙面,保证室内使用空间完整高效,不影响立面效果。
隔振问题解决:巧妙设计断接雨水口
针对隔振带来的立管跨越问题,将消防、给水系统上下分开,排水节点通过断接雨水口“接水兜”统筹结构变形量,保证排水管在最大变形范围内不被破坏,外侧用带有学校纹饰的穿孔板装饰。
尾声:夹缝里的轻革命与新范式探索
成都七中林荫学科融合中心改造项目虽面积不大,但涉及多个专业协作,是教学理念与建筑理念的碰撞融合。此次改造旨在为同学创造丰富学习体验,激发对素质拓展的兴趣和探索欲,增强校园认同和归属感。同时,借助“轻介入”策略,倡导经济普适的价值观和技术路径,探索校园建筑改造新范式,让空间回归教育本身,在保留百廿名校记忆的同时,书写新的故事。

1条评分金币+6
xgch 金币 +6 回复认真,加分鼓励 昨天 18:27
如何不发帖就快速得到金币道行
 
在线姜谷粉丝

UID: 1569053

精华: 2
级别: 玉清道君

发帖
174287
金币
557808
道行
20030
原创
768
奖券
407
斑龄
0
道券
30
获奖
0
座驾
设备
摄影级
在线时间: 21705(小时)
注册时间: 2012-06-21
最后登录: 2026-03-04
只看该作者 板凳  发表于: 昨天 12:28
成都七中(林荫校区)学科融合中心改造项目概况
项目背景:随着学校发展,既有校舍无法满足多元教育理念与空间需求,拟将临科华路的勤工楼(南侧,7层,总高24m)与博雅楼(北侧,3+1层,总高14m)收回,改造为承载音乐、美术、科学、技术等多元学科的学科融合中心。项目需保留百年名校的场所记忆,同时注入现代功能与绿色理念。

改造内容与现状问题
1. 现状问题梳理
立面与空间:两栋建筑建成于20世纪80年代,曾对外出租用作电脑卖场、廉价酒店,立面材质老旧、设计冗杂,缺乏整体协调性;空间逼仄零碎,博雅楼作为素质拓展教学核心载体,其布局与学科融合理念不匹配,缺乏灵活可变空间,难以适应不同规模教学活动。
结构与消防:勤工楼结构鉴定为Asu级,博雅楼为Csu级(整体承载力不足),需加固处理(博雅楼需整体加固、三维隔震支座措施);两栋楼均存在疏散宽度不足(博雅楼走道宽1.1m,楼梯间距50m、宽850mm)、疏散距离过长等问题。
机电与环境:东向立面开窗被封堵,通风采光差;线路冗余老化,无法支撑现代教学设备需求;物理环境(声光热)不佳。
2. 改造建设内容
项目拟对勤工俭学楼、博雅楼、泳池部分进行整体改造,总建筑面积约9156㎡(其中勤工楼4573㎡、博雅楼3200㎡、泳池1383㎡),主要建设内容包括:

拆除清运工程、结构加固工程(博雅楼需拆除全部隔墙保留框架,安装隔震支座)、土建工程、装饰装修工程、安装工程;
勤工楼屋顶绿化工程、新建室外疏散楼梯;
泳池部分改造及室外总图改造工程;
机电设施更新(解决线路老化、通风采光问题)。
中国建筑西南设计研究院的角色
中国建筑西南设计研究院作为项目设计单位,承担以下工作:

结合新高考、新课改要求,完成勤工俭学楼(主楼)、博雅楼(副楼)的方案设计、初步设计、施工图设计;
编制可研报告(及项目建议书)、项目估算、项目概算、工程量清单及控制价;
配合项目发改或财政立项资料编制,协助完成施工图审查、报批报建;
施工现场配合(确认现场效果、解决施工中的设计问题)。
项目进展
2024年1月,项目采购建设管理服务(由成都城投教育投资管理集团有限公司承担);
2024年2月,设计招标公告发布(中建西南院中标);
2024年6月,施工标段中标(中国五冶集团有限公司);
2024年7月,项目处于备案阶段,明确改造面积、建设内容等细节(如泳池运动场改造建筑面积843.77㎡,总平卫生间改造40.35㎡)。
总结
该项目旨在通过轻介入策略(如空间秩序重构、立面梳理)实现老建筑活化,满足学科融合教学需求,同时保留校园历史记忆。中建西南院作为设计单位,负责从方案到施工的全流程设计服务,确保改造后的建筑既符合现代教育功能,又传承百年名校的文化脉络。
1条评分金币+6
xgch 金币 +6 回复认真,加分鼓励 昨天 18:27
如何不发帖就快速得到金币道行
 
我有我可以
快速回复
限120 字节
认真回复加分,灌水扣分~
 
上一个 下一个