查看完整版本: [-- TAOA 陶磊建筑新作:杭州同理轩美术馆[85P] --]

武当休闲山庄 -> 无奇不有 -> TAOA 陶磊建筑新作:杭州同理轩美术馆[85P] [打印本页] 登录 -> 注册 -> 回复主题 -> 发表主题

jjybzxw 2026-02-07 09:25










© TAOA
这是一个在未施工完成的社区项目基础上改建而成的社区美术馆,未来的展览内容将以现当代艺术为主。

▲被掀开的立面 ©TAOA

▲被掀开的入口峡谷 ©TAOA

▲冲孔网后若隐若现的楼梯 ©TAOA
建筑的前身包含地下和地上两个部分,地下是已施工完成的社区地下停车场,地上则是一处独立但尚未动工的 570 ㎡社区公共空间。为满足美术馆的实际需求,需将部分地下停车空间改造为展厅,并与地上待建的独立空间相连。原本的设计任务为美术馆的室内空间设计,因地上原规划建筑尚未动工,随着方案推进,室内设计逐渐延伸为整体建筑的改建设计——这是一次由内而外的创作:内部空间需求逐渐改变了建筑原有的结构、空间与外立面,使其蜕变为一座全新建筑,也彻底重新定义了这座建筑。

▲原始条件 ©TAOA
但建筑的基本外形需遵循原有审批的规划要求,即一个被正圆柱体切削的立方体,同时必须顺应已施工完成的地下结构。这些既定条件也成为了新设计的核心切入点,显然这如同一个命题作文。

▲从桥上看向北立面 ©TAOA

▲灯笼般的金属网罩 ©TAOA
这栋面积不大的美术馆正前方面对着一条穿城河流,侧边紧邻城市主干道,因此它不仅属于社区,也属于城市的一部分。建筑朝向城市的一面被“掀开”,将原本被包裹完整的空间打破,撕裂的外壳让这座建筑变得既独立又开放。

▲形体由来与演变 ©TAOA

▲弧形瓦楞形体生成 ©TAOA
整个正面采用不锈钢板冲孔处理,使室内空间完全开放,一览无余地朝向城市;而从外部看来,建筑仍保持着独立完整的形态。室内透过完整的落地玻璃与冲孔不锈钢板看向城市,一幅巨幅城市画卷经冲孔板过滤后变得模糊而抽象;外界光线经过筛选,柔和地渗入室内。

▲东侧水景 ©TAOA

▲隔河而望 ©TAOA

▲弧面金属板带来的曼妙反射©TAOA
被“掀开”的立面不同于普通开窗,它将室内空间更彻底地打开——这不仅是开启面积比例的问题,更是对空间开放性的直接感官表达。二层的立面因掀起角度不同,同时充当了一层掀开式雨棚的拉结结构,雨棚向下倾斜的出挑形态,让人联想起传统的檐下空间。

▲西立面 ©TAOA

▲西南视角 ©TAOA

▲掀开的局部 ©TAOA

▲掀开立面连通城市空间 ©TAOA
透明连续的弧面板形成的波浪形态赋予建筑自身秩序,光线借助不锈钢曲面形成的反射,产生出微妙变化,唤起了建筑体量如雕塑般的柔情感受,使其呈现出优雅的姿态。

▲主干路看向东立面 ©TAOA

▲总体概览 ©TAOA
不锈钢材料的选择具有时代性,其工艺特征契合当今的加工便利性。材料本身的光泽与冲孔设计带来的光线丰富变化,既契合当代的精神需求,也是为了更好地融入日益快节奏的现代城市。

▲东立面 ©TAOA

▲东立面02 ©TAOA
立面采用弧形钢板,不仅与半圆形的基础体量取得一致性,也借用弧形板自身的张力达到所需强度,省去了通常需在背后设置的龙骨。这使得室内透过网孔向外眺望时,看不到多余的构件。这不仅在视觉上形成纯净的韵律,也符合内在的建造逻辑,无论从外看向室内还是从室内望向室外,都保持了空间的单纯性。

▲掀开立面连接城市空间 ©TAOA

▲檐下空间 ©TAOA

▲檐下空间02 ©TAOA

▲檐下空间03©TAOA

▲檐下空间局部 ©TAOA
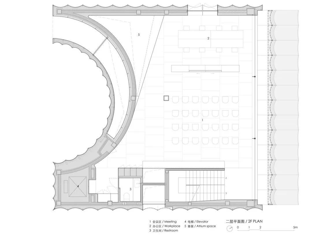
入口设于半圆形内凹处,这一选择不仅基于建筑的基本形态,更意在借用原始设计中半圆形所塑造的场所向心性,更好地将美术馆与社区联结起来。从半圆一侧将立面掀开一道缝隙,顶部天光倾泻而入,照亮这个三层高的“空间峡谷”,由此完成观众从社区空间进入艺术空间的心境转换。

▲被掀开的入口峡谷 ©TAOA

▲被掀开的入口峡谷 ©TAOA
入口如蜿蜒峡谷,是一处柔化的礼仪性空间,这里并不同于大型美术馆的宏大叙事,更强调人身体的具体体验。自然光从高处的缝隙中渗入,顶部的光线、侧墙的弧线与金属墙面材料的半透明性所带来的感受相互叠加,形成一瞬间超自然的体验,是进入建筑前的精神礼遇。

▲南侧入口峡谷 ©TAOA

▲入口峡谷空间01 ©TAOA

▲入口峡谷空间02 ©TAOA
一层被掀开的立面形成的雨棚,为室外场地营造了一个半户外场景,室内空间也因此被直接打开。掀开的裂缝与透明性意在塑造一种介于独立与开放之间的独立复合体。室内地面向外连续延展,与室外融为一体,将建筑内部空间与城市空间建立了必要联系;前方出挑的平台意在强化建筑与城市的主动联系,让建筑的活动边界更多地融入城市空间。底层开放与城市空间连为一体,成为室内空间向自然的延续。

▲掀开立面连接城市空间 ©TAOA

▲一层01 ©TAOA

▲一层02 ©TAOA

▲一层接待厅 ©TAOA

▲一层楼梯井 ©TAOA

▲一层室内外连通 ©TAOA

▲一层室内外连通02 ©TAOA

▲一层通高空间 ©TAOA

▲冲孔板过滤后的朦胧视野©TAOA

▲从“峡谷”进入一层 ©TAOA

▲地下通高空间 ©TAOA
在建筑体弧形的一角,将地上三个楼层空间打通,挑空并逐层收缩,顶部天光穿越整个楼体,照亮了建筑最深处的角落,化解了此处原本锐角空间的窘迫,将这里塑造为垂直高耸的精神性空间,在建筑最深处将地上三层空间联结起来。

▲天井庭院©TAOA

▲蜿蜒盘旋的楼梯 ©TAOA

▲阳光随着空间洒下 ©TAOA
楼梯顺着侧墙向上爬升,在这里不仅是功能性交通,更是上下空间连续与转换的重要装置。因消防规范要求而设置的隔断防火墙,使得楼梯成为相对独立的空间。蜿蜒曲折的爬升途中,路径的关键片段反映在了外墙采光窗洞上,透过冲孔金属板隐约可见,在日常交通的过程中,也可以透过外窗体会移步换景的乐趣,同时从城市的视角也可以感受到建筑内部的活力。

▲蜿蜒盘旋的开放交通空间©TAOA

▲钢板与阳极氧化铝楼梯间 ©TAOA

▲钢格栅背后若隐若现的售卖区©TAOA

▲连通地上地下的旋转楼梯01©TAOA

▲连通地上地下的旋转楼梯02©TAOA
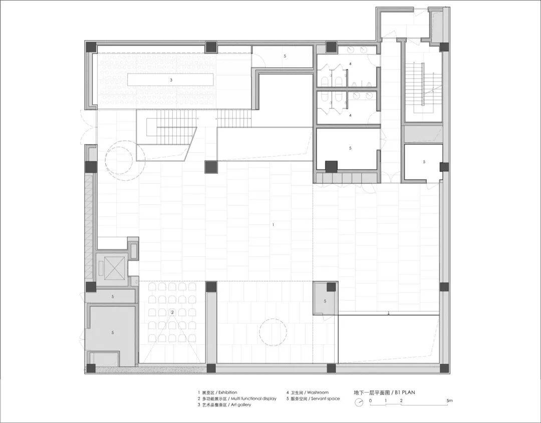
大部分展厅被设置在地下室空间,为使这一纯地下空间获得与地上部分的联系,在靠近外墙的位置拆除了部分原有楼板,室外的自然光得以从这里引入至地下空间。交通顺势而为,回旋转折的楼梯由此引入,将这条路径穿越地上与地下,自然光透过空间的转换,将上下楼层的空间联系在一起,地上和地下被整合成了一个连续的整体。在地下空间的另一角,通过拆除部分的楼板将原本地上的景观下沉到地下的室内,为地下展厅带来一片静谧的自然。

▲逐层收分的垂拔光筒 ©TAOA

▲一层通往楼梯间 ©TAOA

▲一层休闲接待区 ©TAOA

▲逐层内收的垂拔空间 ©TAOA

▲二层格栅后的楼梯©TAOA

▲三层岛台 ©TAOA

▲三层会客厅 ©TAOA

▲天光充满整个垂拔空间 ©TAOA
对于当代艺术而言,与大众的融合是当下的趋势,也是当代艺术价值的内涵,这更需要美术馆与城市融合,与社区融合。艺术不应只停留在庙堂之上,更应该成为日常生活的一部分。这一内在的变化,也赋予美术馆建筑双重身份——它不仅是社区的一部分,也是城市的一部分。

▲拆除部分原始结构板连通地上地下空间©TAOA
它应该是亲切而优雅的,并保持着对城市空间的开放,安静地置身于城市一隅。不同于大型美术馆或艺术区美术馆,它作为都市生活的一部分,始终保持向城市空间的延续。为了更符合现代都市的精神需要,建筑保持着精确性和清晰的秩序,也是为了从喧嚣的城市生活中开辟出一片自在自由的精神栖息地。

▲B1售卖区 ©TAOA

▲B1与地上的连通01 ©TAOA

▲B1与地上的连通02 ©TAOA

▲B2至地上的连续交通 ©TAOA
项目图纸与模型

▲幕墙安装过程 ©TAOA

▲模型剖切图 ©TAOA

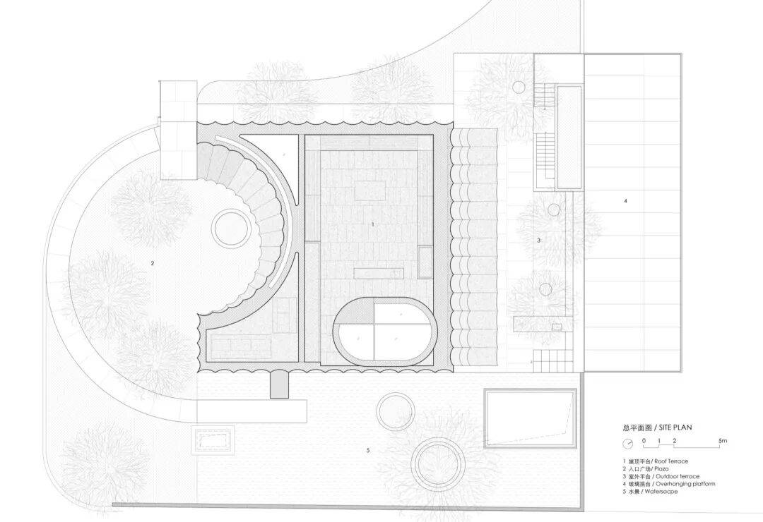
▲总平 ©TAOA

▲B1 ©TAOA

▲B2 ©TAOA

▲一层 ©TAOA

▲二层 ©TAOA

▲三层 ©TAOA

▲北立面 ©TAOA

▲东立面 ©TAOA

▲南立面 ©TAOA

▲西立面 ©TAOA

▲剖面1-1 ©TAOA

▲剖面图2-2 ©TAOA

▲墙身节点图 ©TAOA
项目名称:杭州同理轩美术馆
项目类型:建筑、室内、景观、改造
设计方:TAOA 陶磊建筑
项目设计:2022
完成年份:2025
设计团队:主创建筑师:陶磊 设计团队完整名单:陶磊 陈真 崔翔 陶冶 孟祥瑞 王淑晨 何晓甜
项目地址:中国-杭州-萧山区
建筑面积:1628㎡,地上570㎡。
摄影版权:陶磊
合作方:幕墙:浙江亚厦装饰 结构:浙江省建筑设计研究院 景观:杭州木杉景观设计 照明:TS倘思照明设计 施工:杭州精亦装饰工程有限公司
客户:同理文化传播有限公司
材料:不锈钢,阳极氧化铝板,铝拉网,石材,岩板
品牌:上海安美特阳极氧化铝板,迈饰新材料,德利丰岩板,BEEYE彼易极窄门窗

jjybzxw 2026-02-07 09:27
杭州同理轩美术馆:在限制中生长的“城市雕塑”,一场从内而外的空间革命  
——论社区美术馆的双重身份与当代性表达  
一、引言:命题作文下的建筑诗学  
杭州同理轩美术馆的改建设计,始于一个看似矛盾的命题:在既定的规划条件与地下结构中,创造一座既属于社区又融入城市的当代美术馆。设计方TAOA以“掀开”为核心动作,通过解构与重构的辩证,将限制转化为独特的美学语言。这座建筑面积仅1628㎡的建筑,最终成为一件“城市雕塑”——既满足功能需求,又以优雅的姿态回应了城市、河流与社区的三重语境。  
二、设计策略:从“限制”到“自由”的转化  
1. 规划条件的诗意回应  
基本形体约束:建筑需遵循“正圆柱体切削的立方体”规划要求,且地下结构已固定。TAOA将这一限制转化为设计起点,通过“掀开”立面、打通楼层等手法,在立方体中植入动态空间。  
例:二层立面因掀起角度不同,同时充当一层雨棚的拉结结构,既满足功能需求,又形成类似传统檐下空间的过渡形态,呼应江南建筑“灰空间”的智慧。  

2. 地下空间的重生  
功能置换:将原地下停车场部分改造为展厅,通过拆除部分楼板、引入天光等手法,化解地下空间的封闭感。  
垂直联系:蜿蜒的旋转楼梯成为空间核心装置,其路径关键片段反映在外墙采光窗洞上,形成“内外互文”的视觉趣味。  
三、空间叙事:独立与开放的双重性  
1. 立面的“撕裂”与“缝合”  
不锈钢冲孔板:正面采用不锈钢板冲孔处理,室内空间完全开放向城市,而外部仍保持独立形态。光线经冲孔板过滤后柔和渗入,城市景观被抽象为模糊的背景画,形成“看与被看”的辩证关系。  
弧形钢板逻辑:立面采用弧形钢板,既与半圆形基础体量一致,又利用自身张力达到强度需求,省去背后龙骨。这种“结构即装饰”的设计,使室内外视野纯净无阻。  

2. 入口峡谷:身体体验的仪式感  
半圆形内凹设计:入口位于半圆形内凹处,借用场所向心性联结社区。从半圆一侧掀开立面缝隙,天光倾泻而下,照亮三层高的“空间峡谷”,完成从日常到艺术的场景转换。  
蜿蜒路径:入口如峡谷般柔化空间尺度,自然光从高处缝隙渗入,与弧形侧墙、半透明金属墙面叠加,营造超自然的瞬间体验——这是建筑对身体的“精神礼遇”。  
四、材料与工艺:当代精神与建造逻辑的统一  
1. 不锈钢的时代性  
材料光泽与冲孔设计带来的光线变化,契合快节奏现代城市的需求。其加工便利性使复杂曲面得以实现,同时通过弧形板的自身张力减少结构构件,体现“形式追随力学”的理性美。  

2. 细节中的东方隐喻  
檐下空间:雨棚的倾斜形态与传统建筑檐口呼应,但以不锈钢材质重构,形成“轻与重”“古与今”的对话。  
天光垂拔:地下空间通过拆除楼板引入天光,顶部逐层收缩的垂拔空间化解锐角压迫感,塑造垂直向的精神性场所——这是对柯布西耶“光教堂”的东方化演绎。  
五、双重身份:社区与城市的共生体  
1. 作为社区的延伸  
底层开放:一层室内外连通,地面向外延展形成半户外平台,强化建筑与城市的主动联系。底层成为室内空间向自然的延续,举办社区活动时,艺术与生活的边界被模糊。  
功能复合:除展厅外,建筑内设休闲接待区、会客厅、售卖区等,满足社区居民日常需求,避免成为“孤岛式”文化地标。  

2. 作为城市的雕塑  
曼妙反射:弧形不锈钢板随光线变化产生微妙反射,使建筑在白天呈现不同姿态;夜晚灯光设计则让其成为河流边的“灯笼”,参与城市夜景塑造。  
视线通廊:从主干道看向东立面,冲孔板后的城市景观与建筑自身形成双重画面,建筑成为“观看城市的框架”——这是对罗伯特·文丘里“复杂性与矛盾性”理论的实践。  
六、理论呼应:当代美术馆的范式转型  
1. 从“庙堂”到“客厅”  
同理轩美术馆摒弃大型美术馆的宏大叙事,强调身体的具体体验与社区的亲密感。其设计逻辑与安藤忠雄的“住宅美术馆”理念异曲同工——艺术应回归日常生活,而非被供奉在神坛。  

2. 限制中的创新  
项目印证了勒·柯布西耶“建筑是戴着镣铐跳舞”的论断。TAOA通过“掀开”“打通”“反射”等手法,将规划条件、地下结构等限制转化为独特的美学语言,为同类改造项目提供范本。  
七、结语:在限制中自由生长的建筑诗篇  
杭州同理轩美术馆的改建设计,是一场关于“限制与自由”的深刻实践。TAOA以“掀开”为钥匙,解锁了规划条件、地下结构与社区需求的三重枷锁,最终呈现一座既独立又开放、既当代又东方的“城市雕塑”。它证明:真正的创新,往往诞生于对限制的智慧回应中。  

🌿 当观众穿过入口峡谷,天光倾泻而下,艺术与生活的界限在此消融——这不仅是空间的转换,更是一座建筑对城市、河流与社区的温柔告白。  

【 项目关键数据与理论延伸 】  
建筑面积:1628㎡(地上570㎡)  
设计团队:TAOA陶磊建筑(陶磊、陈真、崔翔等)  
核心材料:不锈钢冲孔板、阳极氧化铝板、铝拉网  
理论参考:  
勒·柯布西耶《走向新建筑》“形式追随力学”  
罗伯特·文丘里《建筑的复杂性与矛盾性》  
安藤忠雄“住宅美术馆”理念  

📸 必看视角:  
1. 入口峡谷的天光倾泻  
2. 东立面弧形钢板的曼妙反射  
3. 地下展厅的自然光垂拔空间



查看完整版本: [-- TAOA 陶磊建筑新作:杭州同理轩美术馆[85P] --] [-- top --]


Powered by www.wdsz.net v8.7.1 Code ©2005-2018www.wdsz.net
Gzip enabled


沪ICP备:05041533号