查看完整版本: [-- 刘宇扬新作:FuFu上海即将完工,从庭院到屋顶的“全龄游乐园”//杭州金沙中心 / 浙江省建筑设计研究院[51P] --]

武当休闲山庄 -> 无奇不有 -> 刘宇扬新作:FuFu上海即将完工,从庭院到屋顶的“全龄游乐园”//杭州金沙中心 / 浙江省建筑设计研究院[51P] [打印本页] 登录 -> 注册 -> 回复主题 -> 发表主题

jjybzxw 2026-02-10 10:38
刘宇扬新作:FuFu上海即将完工,从庭院到屋顶的“全龄游乐园”[34P]


© 党航
在过去半个多世纪里,东湖路 30 号从最初的华侨办事处和街边花园,逐渐被不同年代的建筑包围填满,是城市增量时代的典型。2024 年末,面对这座现实“迷宫花园”,设计团队与业主共同确立了“减量”策略 —— 通过清理与拆除,释放原有庭院,为高密度街区创造呼吸空间。

航拍图 © 刘宇扬建筑事务所

© 党航

© 党航
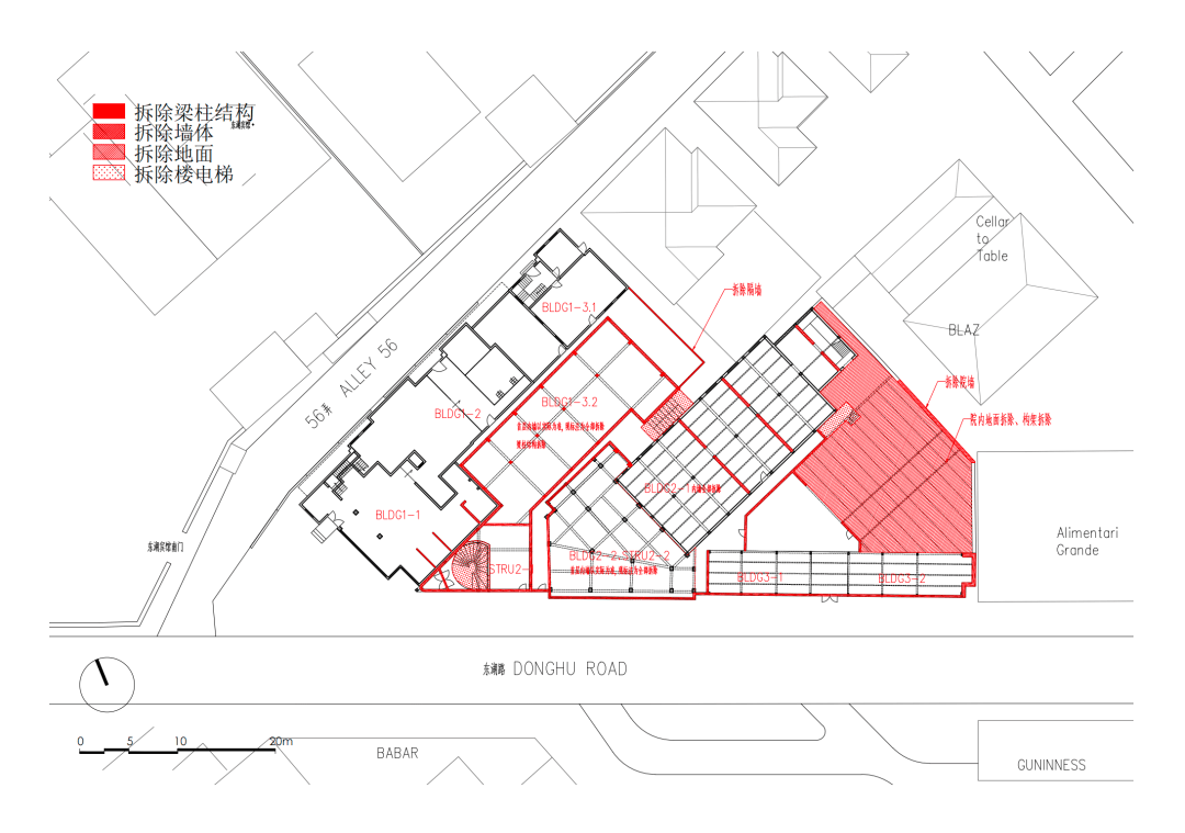
面对 2,团队与结构顾问合作,精准界定了拆除与保留范围,依据房屋质量检测报告,对保留的结构框架加固,并利用旧楼板支撑浇筑新楼板,在不增加面积的前提下提升空间品质。2#-1 建筑立面以 3.5 米开间呼应周边肌理,内部可自由划分。

© 党航

© 党航

© 党航
2#-2 沿街体量严格遵从宗地图边界:范围外拆除以释放前场,利用范围内保留的结构柱网,结合场地几何生成平缓的立面曲线,柔化周边环境对话关系。屋顶增设钢木覆膜顶棚,形成半开放空间,呼应 “From farm to table” 理念,为市集、展览、实验性种植提供多样可能。

© 党航
设计通过“考现”梳理,唤醒了场地作为 1950 年代托儿所活动空间的记忆,并融入 Aldo van Eyck 的社区游乐场与 Cedric Price “Fun Palace” 的实验性构想,旨在打造一个融合餐饮、零售、创意与快闪的“全龄游乐园”。

© 党航

© 党航

© 党航
“呼吸”具化为庭院系统:围绕 2800 平方米的开放空间,形成南北两院。南院(约 400㎡)由 2、3BLAZ 洋房围合。拆除隔墙后,洋房的历史立面成为庭院的自然边界。3,经调整至约 6 米以适配餐饮需求,其北端切角与 2,三侧立面打开后形成了连接庭院的活力转角。北院(约 300㎡)划分为公共前院与私密后院,以一个透明玻璃盒子轻巧区隔,结合未来运营需求,清晰区分使用场景。

© 党航

© 党航
“游乐”由立体游廊系统实现:空中连廊与钢构楼梯将庭院、平台与屋顶串联为可循环的立体场所。路径从南庭院旋转楼梯开始,经连廊穿越 2,抵达北侧休息平台与屋顶花园,最终从南侧回到地面,形成一段连贯的探索体验。

© 党航

© 党航

© 党航
本项目是一次贯穿“全尺度”与“全过程”的设计实践。作为全程设计及运营顾问,团队不仅完成了园区主体(2)的建筑、室内与景观设计,还统筹协调了 1、3BLAZ 相邻界面改造,确保园区在动线、体量与风貌上的整体性,从街区关系研究延伸至建筑、室内、景观及细部家具,践行 “From spoon to city” 一体化理念。

© 党航

© 党航
东湖路 30 号通过“减量”与“连接”,将封闭存量角落转化为向城市开放、充满弹性的活力复合场所。目前项目临近完工,沿街主力商户已陆续开业,园区进入招商收官与装修收尾阶段。

© 党航

© 党航
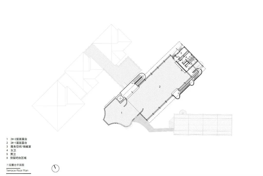
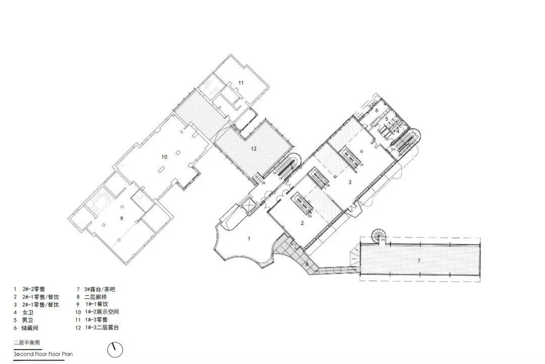
项目图纸

一层平面图 © 刘宇扬建筑事务所

二层平面图 © 刘宇扬建筑事务所

三层平面图 © 刘宇扬建筑事务所

屋顶平面图 © 刘宇扬建筑事务所

立面图及剖面图 © 刘宇扬建筑事务所

墙身大样图 © 刘宇扬建筑事务所

给施工单位的检测拆除示意 © 刘宇扬建筑事务所

清拆图 © 刘宇扬建筑事务所

东湖路30号场地肌理演变 © 刘宇扬建筑事务所

东湖路历史沿革 © 刘宇扬建筑事务所

东湖路与安福路对比 © 刘宇扬建筑事务所

“from farm to table” 概念图 © 刘宇扬建筑事务所

2# 楼及园区整体钢木结构草图 © 刘宇扬建筑事务所

ALYA 杨浦滨江项目照片与东湖路草图 © 刘宇扬建筑事务所
项目信息
项目名称:FUFU 上海
建筑事务所:刘宇扬建筑事务所
项目地址:徐汇区,上海,中国
项目年份:2026 年
场地面积:4212.69平方米
规划面积:2167.99平方米
建筑面积:1125.37平方米
主持建筑师:刘宇扬
项目主管:吴从宝
方案主创:周小晨
深化负责人:谭梦琪
驻场建筑师:周小晨
建设单位:上海愚境企业管理咨询有限公司
结构顾问:和作结构建筑研究所
机电顾问:上海三匠机电科技有限公司
灯光顾问:麓米照明设计(上海)有限公司
摄影:党航
========================================================================================================================================

杭州金沙中心 / 浙江省建筑设计研究院[17P]


历经十余年发展,金沙湖从昔日的围垦滩涂蝶变为集行政办公、商业金融、产业总部于一体的"城市客厅"。环湖近百万平方米商业体量汇聚龙湖天街、吾角天街、印象城、银泰百货等四大综合体,金沙湖大剧院、文体中心、图书馆等文化地标相继投用,"杭州小三亚"的碧波金沙与棕榈树影已成为城市新名片。而今,随着东部湾新城纳入钱江新城二期拓展研究区,这座"都市未来城"正迎来从"产业新区"向"现代化城区"的跃升。在此背景下,位于金沙湖南岸的金沙中心应运而生。这不仅是办公园区,而是一个与湖共生的立体城市综合体,坐拥一线湖景资源,打造"产城人文景"深度融合新名片。

湖景鸟瞰图©筑言建象-建筑摄影
01.
项目概述

项目总图©ZIAD

项目鸟瞰图©筑言建象-建筑摄影
02.
设计理念
坐落金沙湖畔,项目以四个塔楼与围合内街为核心,构建高效办公、活力商业与湖景交融的未来城市综合体,重塑下沙CBD天际线与滨湖办公新范式。

项目鸟瞰图©筑言建象-建筑摄影
一、合院共生·界面向新
本项目摒弃传统的塔楼裙房一体式布局,在北侧两个地块将两栋塔楼与多个裙房围合,形成横向展开的围合庭院及一条贯穿其中的景观内街。这种"分而不离"的组织方式,既保证了各建筑单体独立管理、灵活运营的务实需求,又通过底层商业界面的连续延展,营造出浓郁的商业氛围与宜人的内庭景观,形成面向未来、主客共享的滨水城市客厅界面。借鉴中国传统建筑四水归堂的理念,实现了从城市公共空间向私密生活场景的渐进过渡。
体块分析图©ZIAD
合院式布局重新定义了现代办公空间的社交属性。产业孵化平台主要面向创业小团队与新型产业团队,虽在景观与商业配套上有所精简,但通过多功能商业中心植入共享办公、共享会议、共享会客厅等弹性配套,在内街环境中创造出高密度、高互动的交流场所。各庭院作为人们聚集、活动的重要节点,不再是封闭的"天井",而是充满生命力的"磁力场",在促进产业协作的同时,也为街区注入了持续活力。

项目北立面图©筑言建象-建筑摄影
二、双塔映湖·退台叠翠
项目以办公及配套商业为主导功能,于金沙湖南岸核心地段打造标志性商务地标。主体由100米与80米双子塔楼组成,分别布局于紧邻湖岸的北侧两个地块,通过高低错落的身姿,与周边建筑群共同勾勒出金沙湖南岸起伏有致的城市天际线,使建筑形态与金沙湖南侧建筑群相得益彰,激活区域新地标。

天际线分析图©ZIAD
两座塔楼均朝向北侧金沙湖最大化展开面宽,以北向开阔视野将湖光水色与城市公园尽收眼底。这种"面湖而生"的布局策略,不仅在平面功能上实现了高效集约的办公空间组织,更让每层都能享受无遮挡的一线湖景,使自然景观成为室内空间的延伸,重新定义滨水商务办公的体验标准。
分析图©ZIAD
退台成趣,立体商业: 塔楼两侧沿湖设置三层裙房,采用层层退台的造型手法,面向金沙湖逐级跌落。退台设计既形成了丰富的立体商业界面,营造出活跃的商业氛围与驻留空间,又创造出多层次的绿化观景平台——既可近瞰内庭景观,又可远眺金沙湖景,实现了商业活力与自然景观的立体交融,打造出一座"空中花园式"的滨水商务客厅。

沿天城东路街景©筑言建象-建筑摄影
03.
技术亮点
设计追求在统一中见变化,于简洁中藏丰富。整体建筑群以统一而连贯的设计语言构成一个有机综合体,各单体既保持独特的个性特征,又通过共享的立面语法形成和谐的视觉整体,共同塑造出现代、时尚且富有都市活力的片区形象。

天城东路与金沙湖隧道街景©筑言建象-建筑摄影
整体建筑立面以竖向大装饰条玻璃幕墙系统为主导,设计师通过铝制竖向构件的精密编排,在立面上谱写出一曲光的乐章。线条的粗细变化、疏密节奏与分隔韵律经过精妙的数学推演,结合玻璃体块与金属构件的穿插咬合,打破了高层建筑的单一与厚重,赋予立面强烈的视觉韵律感。这种竖向延伸的线条不仅带来坚定挺拔的体量感,更在日光的照射下产生丰富的光影渐变——晨昏之间,光影流转,静态的建筑仿佛被赋予了动态的生命力,成为城市天际线中一座生动而精致的现代雕塑。

幸福南路立面街景©筑言建象-建筑摄影
幕墙设计采用纯净的玻璃幕墙与铝制竖向构件搭配,以极简的材料组合追求极致的质感表现。玻璃的光泽与金属的哑光形成微妙的材质对话,纵向延伸的线条在视觉上消解了塔楼的体量压迫,而恰到好处的体块分割与咬合关系,既弱化了主立面的单调,又通过阴影凹凸增添了立面的层次深度。每一处细部收口、每一条缝隙对位,都体现着设计师对简洁利落、质感优雅这一美学标准的执着坚守。


立面细节©筑言建象-建筑摄影
04.
社会价值
从社区到城市,这一精致而统一的立面语言,不仅围合出丰富活跃的内部社区,更使建筑群作为一个整体释放出强大的都市辐射力,成为衔接金沙湖景与现代商务生活的城市门户,在简约中彰显着面向未来的建筑自信。项目的建设,将为金沙湖都市综合服务中心注入新的活力,助力构建杭州东部宜居宜业的现代化新城样板。

金沙湖日落©ZIAD
专业图纸

总平面图

首层平面图

标准层平面图

立面图
设计团队
建筑| 王劼、官霄龑、余烜、张宇杰、盖志毅、吴梦超、闫瀚、孙然、郑梁、余阳春、赖亿博、冯可衡、屠昂
结构| 林政、王国琴、韩俊、王硕梁
电气| 程澍、卓银杰、赵孙琛、刘琦
暖通| 李观法、朱勇、张瑶、陈圣泉、任扬明
给水排水| 蒋克伦、楼玉、阮一翎
幕墙| 梁方岭、林娜、方玲、蓝黎冰、韩祥祥
室内设计| 齐晓韵、李晨琤、周峰、方博政、卢秀英
景观设计| 陈静,陆威涛,陈秋禧,朱晓韵
泛光照明| 朱伟凯、周鹏
基坑围护| 刘兴旺、曹国强、马少俊、何勇兴
智能化设计| 刘译泽、谢昊
项目地点: 浙江杭州
设计/竣工年份:2020/2024
业主: 杭州中沙股份经济合作社、杭州七格股份经济合作社、杭州和达意远工程管理有限公司



jjybzxw 2026-02-10 10:42
城市更新与未来地标:FUFU上海与杭州金沙中心的双重叙事
一、FUFU上海:高密度街区的“呼吸”与“游乐”
1. 项目背景:从“增量迷宫”到“减量重生”  
东湖路30号的历史可追溯至1950年代,曾作为华侨办事处与托儿所,后被不同年代的建筑包围,形成高密度、低品质的“迷宫花园”。刘宇扬建筑事务所通过“减量”策略,清理拆除部分建筑,释放2800平方米庭院空间,为街区创造“呼吸”的缝隙。这一策略不仅是对城市增量时代的反思,更是对高密度环境下公共空间价值的重新定义。

2. 设计策略:庭院与游廊的立体编织  
庭院系统:  
南北两院:南院(400㎡)由历史洋房围合,拆除隔墙后,洋房立面成为庭院自然边界,北端切角与三侧立面打开,形成连接庭院的活力转角;北院(300㎡)划分为公共前院与私密后院,以透明玻璃盒子区隔,满足不同场景需求。  
历史记忆的唤醒:通过“考现”梳理,设计保留了场地作为托儿所的空间记忆,并将Aldo van Eyck的社区游乐场理念与Cedric Price的“Fun Palace”实验性构想融入其中,使庭院成为全龄互动的场所。  
立体游廊系统:  
路径设计:空中连廊与钢构楼梯将庭院、平台与屋顶串联,形成从南庭院旋转楼梯开始,经连廊穿越建筑,抵达北侧休息平台与屋顶花园,最终回到地面的连贯探索体验。  
功能复合化:游廊不仅是交通路径,更是观景、休憩与社交的场所。屋顶增设钢木覆膜顶棚,呼应“From farm to table”理念,为市集、展览与实验性种植提供多样可能。  

3. 技术实现:结构加固与空间重构  
精准拆除与保留:依据房屋质量检测报告,界定拆除范围,对保留结构框架加固,并利用旧楼板支撑浇筑新楼板,在不增加面积的前提下提升空间品质。  
立面与体量控制:2#-1建筑立面以3.5米开间呼应周边肌理,内部自由划分;2#-2沿街体量严格遵从宗地图边界,利用保留结构柱网生成平缓立面曲线,柔化与周边环境的对话关系。  

4. 社会价值:从封闭角落到城市客厅  
FUFU上海通过“减量”与“连接”,将封闭存量角落转化为向城市开放、充满弹性的活力复合场所。项目不仅为街区提供了公共空间,更通过全龄游乐设施与立体商业界面,激活了社区互动,成为高密度城市更新中的典范。
二、杭州金沙中心:滨水商务的“共生”与“地标”
1. 项目背景:从“产业新区”到“现代化城区”  
金沙湖历经十余年发展,已成为杭州东部“城市客厅”,汇聚行政办公、商业金融与文化地标。金沙中心坐落于金沙湖南岸,以“产城人文景”深度融合为目标,打造与湖共生的立体城市综合体,重塑下沙CBD天际线。

2. 设计理念:合院共生与双塔映湖  
合院共生·界面向新:  
围合庭院与内街:项目摒弃传统塔楼裙房一体式布局,在北侧两个地块将两栋塔楼与多个裙房围合,形成横向展开的庭院及一条贯穿其中的景观内街。这种“分而不离”的组织方式,既保证建筑单体独立管理,又通过底层商业界面连续延展,营造出主客共享的滨水城市客厅界面。  
四水归堂的现代转译:借鉴中国传统建筑理念,实现从城市公共空间向私密生活场景的渐进过渡。庭院作为产业协作与街区活力的“磁力场”,重新定义了现代办公空间的社交属性。  
双塔映湖·退台叠翠:  
双子塔楼地标:100米与80米双子塔楼布局于湖岸北侧,通过高低错落与周边建筑群共同勾勒出起伏有致的城市天际线。塔楼朝向金沙湖最大化展开面宽,使每层均可享受无遮挡湖景,将自然景观延伸至室内空间。  
退台设计与立体商业:塔楼两侧沿湖设置三层裙房,采用层层退台造型,面向金沙湖逐级跌落。退台设计既形成活跃的商业氛围与驻留空间,又创造多层次绿化观景平台,实现商业活力与自然景观的立体交融。  

3. 技术亮点:立面韵律与材料对话  
竖向玻璃幕墙系统:  
光的乐章:铝制竖向构件的精密编排,在立面上形成粗细变化、疏密节奏与分隔韵律,结合玻璃体块与金属构件的穿插咬合,打破高层建筑的单一感,赋予立面动态光影效果。  
材质对话:纯净玻璃幕墙与铝制竖向构件搭配,玻璃光泽与金属哑光形成微妙对比,纵向线条消解塔楼体量压迫,体块分割与咬合关系增添立面层次深度。  

4. 社会价值:从社区到城市的辐射力  
金沙中心通过精致统一的立面语言与功能复合化设计,不仅围合出内部活跃社区,更作为整体释放都市辐射力,成为衔接金沙湖景与现代商务生活的城市门户。项目的建设助力构建杭州东部宜居宜业的现代化新城样板,为“都市未来城”提供新范式。
三、对比与启示:城市更新中的双重路径
1. 空间策略的差异  
FUFU上海:以“减量”为核心,通过清理拆除释放空间,强调公共性与全龄互动,适用于高密度街区的微更新。  
杭州金沙中心:以“增量”与“整合”为核心,通过围合庭院与双子塔楼打造地标,适用于新城开发与滨水商务区建设。  

2. 功能复合化的共性  
两项目均通过立体设计实现功能复合化:FUFU上海的游廊系统串联庭院与屋顶,金沙中心的退台设计融合商业与景观。这种复合化设计提升了空间效率,增强了场所活力。  

3. 技术与美学的平衡  
FUFU上海:注重结构加固与空间重构的技术实现,同时通过历史立面保留与曲线立面设计,平衡功能与美学。  
杭州金沙中心:以竖向玻璃幕墙系统为技术载体,通过材质对话与光影效果,实现现代性与地域性的融合。  

4. 社会价值的延伸  
两项目均超越了单一功能,成为城市文化的载体:FUFU上海通过全龄游乐设施激活社区互动,金沙中心通过滨水商务地标提升城市形象。它们证明,优秀的设计不仅能满足功能需求,更能为城市注入持续的生命力。
结语:城市更新的未来图景
FUFU上海与杭州金沙中心,分别代表了高密度街区微更新与新城地标打造的两种典型路径。前者以“减量”与“连接”释放空间潜力,后者以“共生”与“地标”塑造城市形象。它们的共同点在于:通过设计创新,将建筑转化为城市文化的发生器,为居民提供更具品质与活力的公共场所。在未来的城市更新中,这种“以人为本”的设计理念,将成为推动城市可持续发展的核心动力。


姜谷粉丝 2026-02-10 12:21
🌟 项目核心亮点速览
项目类型    刘宇扬建筑事务所作品    杭州金沙中心
设计关键词    人文共鸣、空间重构    产城融合、24小时商务圈
代表作    上海当代艺术馆、金沙中心餐厅厨房设备    产业园运营、商业配套
特殊技术    跨专业协作、建筑废土改造   清洁机器人采购
🏗️ 背景与设计哲学
刘宇扬的作品常以人文与功能平衡为核心,例如:

上海当代艺术馆:通过光影设计打破传统公建严肃感
广西漓江农舍改建:保留地域特色同时植入现代舒适度
社区体育公园:从建筑废料堆场生长出公共空间 而金沙中心作为产城融合载体,其设计重点在于:
8+8+8模式:工作/生活/休息场景无缝衔接
200米樱花大道:景观带与环湖跑道提升体验
独栋办公+精装酒店:满足企业全周期需求
📝 补充说明
FuFu上海未在现有资料中出现,但浦东东育路345号有FUFU快闪店(非刘宇扬作品);
浙江省建筑设计研究院与刘宇扬事务所为不同主体,前者属国企,后者为独立设计公司。
🧭 下一步建议
若需验证:

联系金沙中心物业咨询入驻细节
对比刘宇扬事务所官网查看最新项目动态
关注杭州产城融合政策解读



查看完整版本: [-- 刘宇扬新作:FuFu上海即将完工,从庭院到屋顶的“全龄游乐园”//杭州金沙中心 / 浙江省建筑设计研究院[51P] --] [-- top --]


Powered by www.wdsz.net v8.7.1 Code ©2005-2018www.wdsz.net
Gzip enabled


沪ICP备:05041533号