查看完整版本: [-- 贵阳Xpark坐标公园 / 未见筑设计事务所//广州JUICE服装展厅办公室 / 本立设计[51P] --]

武当休闲山庄 -> 无奇不有 -> 贵阳Xpark坐标公园 / 未见筑设计事务所//广州JUICE服装展厅办公室 / 本立设计[51P] [打印本页] 登录 -> 注册 -> 回复主题 -> 发表主题

jjybzxw 2026-02-10 10:51
贵阳Xpark坐标公园 / 未见筑设计事务所[27P]


在健身行业普遍以销售年卡为核心焦虑的当下,当大多数空间都在设计如何更高效地容纳器械、隔离个体时,我们与主理人马晨稀共同思考的却是:一个空间能否超越锻炼本身,成为连接人与人的高能量纽带? 答案,藏在贵阳闹市二楼的这个“生长中”的盒子里——Xpark坐标公园。
低门槛、重信任、强社交
马晨稀的黑蚊体育与XPARK品牌,在贵阳拥有近40万注册用户,其核心并非单纯运营场馆,而是旨在构建一个多元的运动消费生态。

设计理念
“Transforming Iron Box 变形的铁盒子”
—— 健身空间不应该呈现静止又封闭的状态
不安分的外立面,掀起的雨棚,转向的拍照间,贯穿始终的脚手架,寓意着建筑和空间的生长,以一种永远在建造中的姿态去呼应运动爱好者持续生长的核心精神。


场所营造
一、入口小屋:友好的问候
入口处的立面垂直翻转,形成斜向屋檐向外挑出,打破街面的沉闷,邀请人们进入一个温暖的小屋,屋内的木质暖色氛围营造友好的气息。


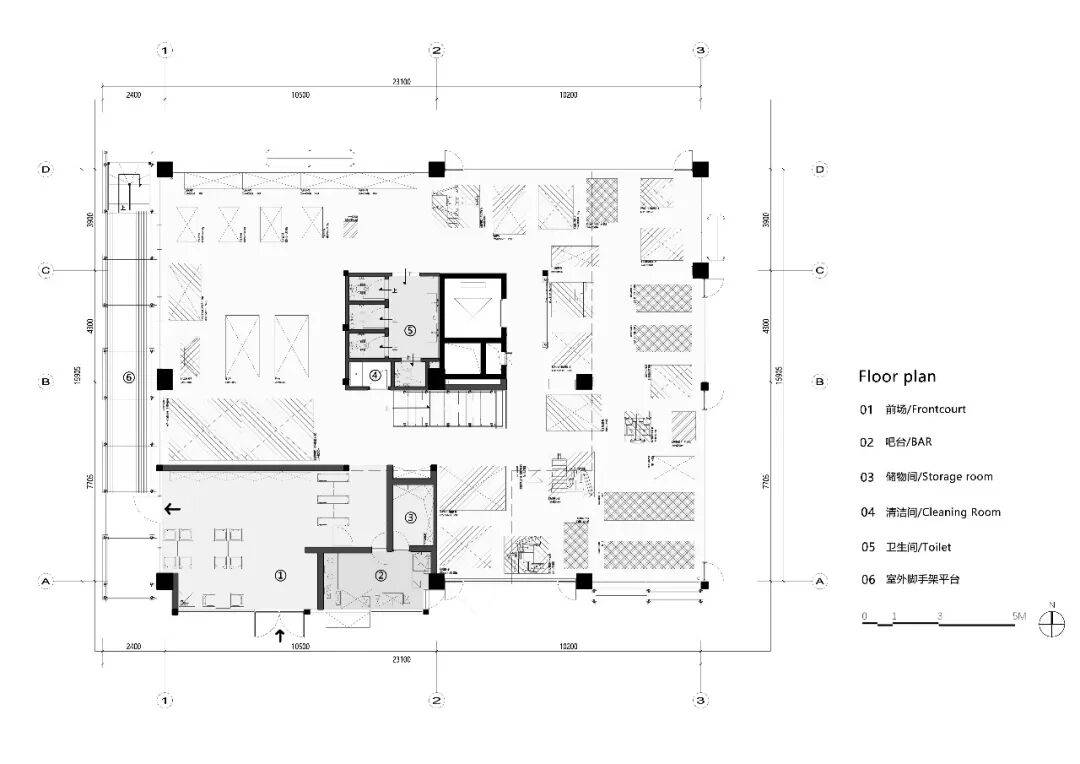
二、首层健身区

在首层狭窄的走廊区,镜面被大量运用,在物理上有效延伸了视觉空间、提示与墙体的距离并引导动线。这不仅缓解了局促感,更使个人专注自我的训练姿态。



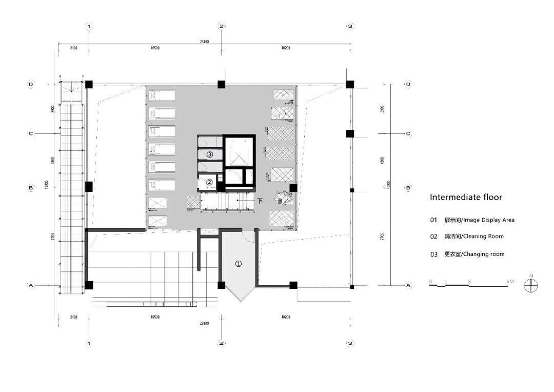
三、夹层训练区:创造共享的视线与能量

利用建筑空高,增加加层搭建出悬空训练台,设置拉伸区和跑步区。确保有氧运动时空间不显局促,减少压抑感,呼吸更顺畅。这种布局打破了传统健身房格子化的孤立感,不仅是对有限面积的高效利用,更在垂直维度上编织了视觉与能量的流动。


四、造型室:认真关注健身的成果
一个45度角突出外立面的半透明盒子,既形成了独特的立面效果,又保证了室内的光线和隐私。室内一整面墙的落地全身镜和一面高角度的俯视斜镜,方便健身者多角度观察和记录自己的训练成果。作为独立房间,为会员提供了足够的私密性,避免社交尴尬。


五、脚手架外摆区:在“立面上”社交
从一楼蔓延至三楼的脚手架外立面,包裹着细密的金属网,过滤阳光,形成舒适的光影。而真正妙处,在于其下自然形成的多层次外摆区。我们并未用固定桌椅填满这里,而是预留了充裕的、可灵活组合的“空白”。这里是运动间隙的喘息之处,也是一场自发小型分享会的可能场地。


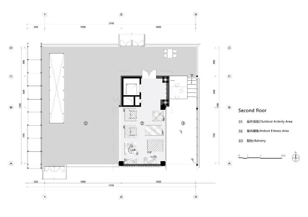
六、屋顶活动区:把运动还给天空与阳光
这是整个健身房采光最好的地方,是社群活动的核心。分为室内区和宽敞的露天区。露天区域被脚手架结构环抱,提供了一个独特的户外训练环境。人们可以在阳光下举办清晨瑜伽、黄昏动物流课程、小型训练营等活动,感受自然气息,用于让健身房的功能超越传统器械训练,成为连接不同运动兴趣的枢纽。


作为Xpark的第二家店,我们延续了品牌的专业与活力,并在这个新空间强化了开放、连接和多元体验的理念。
在这个项目里,设计与商业的终极目标达成一致,不是追求短期客单的最大化,而是追求长期关系的深度化。那些发生在外摆区的闲聊、在训练台上交汇的目光、在顶层露台共同完成的挑战,都是比任何年卡合同都更牢固的纽带。
这或许预示了一种新的商业空间方向,它不仅是功能的承载,更可以是社会资本的孵化器,在钢筋混凝土的城市中,重建人与人之间的亲近与信任,创造一个“身在市中心,却可逃离市区”的轻松据点。

项目图纸

1F

2F

夹层

立面

平面分析(镜面延申)

剖面 分析

剖面
项目信息
投资运营单位:黑蚊运动
项目名称:Xpark坐标公园
项目地址:贵阳市观山湖区国贸ccpark-B馆L1-036
设计面积:491㎡
设计时间:2025.01
竣工时间:2025.08
设计内容:建筑立面改造,室内设计
室内方案设计:未见筑设计事务所
主创设计师 : 李未韬、李博
设计团队 : 邓林、张智睿、张照鑫、刘婷
室内施工图设计:重庆东境装饰设计有限公司
VI设计:黑蚊运动
摄影:Archtric_Image筑技摄影
========================================================================================================================================

广州JUICE服装展厅办公室 / 本立设计[24P]


01.
极简肌理,克制美学
在当代商业化语境中,快时尚的喧嚣与个性化消费需求交织碰撞,服装品牌空间已超越单一功能属性,打破“陈列-销售”的固有边界,从基础物理功能载体,跃升至品牌精神叙事场域的核心维度。


本案坐落于广州珠江国际纺织城,设计团队深度洞察JUICE品牌的诉求,为其构筑集产品展示、日常办公、多元交流于一体的复合型时尚空间。

设计以韩系极简的纯粹性为核心,融入轻工业风的粗粝肌理作为质感点缀。整体以黑白灰为视觉基调,通过几何体块的精准穿插,构建富有秩序感的空间韵律,以克制的设计语言摒弃冗杂装饰,聚焦空间本质与产品价值。
02.
留白筑境,化桎梏为焦点



设计以“开放式矩阵”重构空间布局。以极简体块作为视觉引导,让办公区域与服装展厅自然过渡、无缝流动。

大面积留白的墙面与地面,给予访客充足的视觉呼吸空间,规避信息过载的压迫感。透明玻璃隔断与木质分区的巧妙设置,既完成功能区域的清晰界定,又保持了空间的通透与连贯。


让原始结构柱,成为空间中的艺术装置。结构柱,常是办公空间的“原生桎梏”,割裂动线、打破视觉完整性,成为设计中难以回避的命题。



我们将这根混凝土的原始结构柱,保留其手工打磨后的原始肌理,遵循“生长”的视觉逻辑,使柱体向上延伸。通过极简的线性灯轨衔接天花梁网,将孤立的结构转化为串联空间的视觉线索。


桌面沿柱身延伸,形成功能分区,让柱体在使用中“隐入”场景,浅色木质隔断的加入,温润的触感与柔和的色调,巧妙地中和了混凝土的冷硬,营造出一种既对立又统一的视觉效果。天花延续相同语言,进一步强化整体感。



暖调灯光以柔和光线勾勒空间轮廓。光影不喧哗却自有力量,光线洒落于粗粝与细腻的材质表面,放大肌理的细微变化,让空间层次在静默中逐渐凸显。灯光不仅定义了空间的静谧情绪,更让视线自然聚焦于产品与动线之上,使展厅脱离单纯的展示属性,成为品牌情绪的含蓄表达。
03.
品牌与空间共生

空间语言与品牌价值同频共振。去繁就简的陈列逻辑,恰好呼应了服装本身的设计感,避免冗余装饰抢夺产品焦点。材质的原始表达,与品牌对品质的极致追求不谋而合。


当晨光漫过珠江纺织城的时刻,这里便化身为兼具专业高效与创意滋养的办公场域。以松弛感滋养灵感,以极简主义聚焦本质,以呼吸感让空间与城市肌理自然共生。



项目信息
项目名称:JUICE服装展厅办公室
项目风格:韩系、自然、高级、氛围
项目类型:复合空间、服装展厅、办公室
项目面积:250㎡
项目材料:复古水泥、艺术漆、水磨石、石材、海洋板
项目地址:广州珠江国际纺织城
设计团队:本立设计 BENLINK DESIGN
摄影版权:王可WONGKE

jjybzxw 2026-02-10 10:53
从运动社群到时尚叙事:Xpark坐标公园与JUICE服装展厅的空间创新实践
一、Xpark坐标公园:健身空间的“社交革命”
1. 项目背景:打破健身行业的“年卡焦虑”  
在传统健身房以销售年卡为核心、空间设计聚焦器械隔离的当下,Xpark坐标公园与主理人马晨稀共同探索:如何让健身空间超越功能,成为连接人与人的高能量纽带?项目选址贵阳闹市二楼,以491平方米的“变形铁盒子”为载体,通过低门槛、强信任、重社交的设计策略,重构运动消费生态。

2. 设计理念:“Transforming Iron Box”的动态生长  
建筑作为“未完成体”:  
  外立面采用掀起的雨棚、转向的拍照间与贯穿始终的脚手架,隐喻空间的持续生长,呼应运动爱好者“持续突破”的精神。这种设计语言打破了健身空间的静止与封闭感,使其成为城市中“永远在建造”的活力符号。  
材质与光影的叙事:  
  脚手架包裹的金属网过滤阳光,形成舒适的光影层次,既为外摆区提供遮阳,又通过半透明性保持内外互动。屋顶活动区采用大面积玻璃,将自然光引入室内,强化“运动与自然共生”的理念。  

3. 场所营造:垂直维度的社交编织  
入口小屋:友好的第一印象:  
  立面垂直翻转形成斜向屋檐,木质暖色氛围营造亲切感,打破街面沉闷,邀请行人进入。  
首层健身区:镜面延伸的视觉游戏:  
  狭窄走廊通过镜面运用扩展空间感,同时引导动线,使训练者专注于自我姿态,缓解局促感。  
夹层训练区:共享视线与能量:  
  利用建筑空高增加悬空训练台,设置拉伸与跑步区。垂直布局打破传统健身房的孤立感,促进视线交流与能量流动。  
造型室:成果展示的私密舞台:  
  45度角突出的半透明盒子提供充足光线与隐私,全身镜与俯视斜镜满足多角度观察需求,避免社交尴尬。  
脚手架外摆区:立面上的社交场:  
  金属网下的灵活空白区成为运动间隙的喘息地,支持自发小型分享会,强化社群互动。  
屋顶活动区:天空下的运动枢纽:  
  室内外结合的设计支持瑜伽、训练营等多元活动,使健身房超越器械训练,成为连接运动兴趣的枢纽。  

4. 社会价值:从空间到社会资本的孵化器  
Xpark通过设计强化开放、连接与多元体验,使空间成为社会资本的孵化器。外摆区的闲聊、训练台的目光交汇、顶层露台的共同挑战,构建了比年卡合同更牢固的社群纽带,预示了商业空间从功能承载向社会关系重构的转型方向。
二、JUICE服装展厅办公室:极简主义下的品牌叙事场
1. 项目背景:快时尚喧嚣中的品牌精神表达  
在快时尚与个性化消费交织的语境下,JUICE服装展厅办公室项目突破“陈列-销售”的固有模式,以250平方米的空间为品牌构筑集展示、办公与交流于一体的复合型场域,通过极简设计语言传递品牌价值。

2. 设计理念:韩系极简与轻工业风的对话  
色彩与材质的克制美学:  
  以黑白灰为基调,融入复古水泥、艺术漆、水磨石等粗粝材质,通过几何体块的穿插构建秩序感,摒弃冗余装饰,聚焦产品本质。  
光影的叙事力量:  
  暖调灯光柔和勾勒空间轮廓,放大材质肌理的细微变化,使展厅成为品牌情绪的含蓄表达,同时引导视线聚焦于产品与动线。  

3. 空间策略:从桎梏到焦点的转化  
开放式矩阵布局:  
  通过极简体块引导办公区与展厅的自然过渡,大面积留白墙面与地面提供视觉呼吸空间,避免信息过载。  
结构柱的艺术化重生:  
  保留原始混凝土柱的手工肌理,通过线性灯轨延伸至天花,将其转化为串联空间的视觉线索。桌面沿柱身延伸形成功能分区,木质隔断中和混凝土的冷硬,营造对立统一的视觉效果。  
透明与木质的分区逻辑:  
  玻璃隔断与木质分区界定功能区域,同时保持空间通透性,使展厅与办公区既独立又连贯。  

4. 品牌共生:空间语言与产品价值的同频  
陈列逻辑的极简呼应:  
  去繁就简的陈列方式避免冗余装饰抢夺产品焦点,材质的原始表达与品牌对品质的追求高度契合。  
晨光中的创意场域:  
  空间以松弛感滋养灵感,以极简主义聚焦本质,与城市肌理自然共生,成为兼具专业高效与创意滋养的办公场域。  
三、对比与启示:空间设计的双重路径
1. 功能定位的差异  
Xpark坐标公园:以健身空间为载体,聚焦社群互动与社会资本孵化,通过动态设计与垂直社交打破传统健身房模式。  
JUICE服装展厅办公室:以服装品牌为核心,通过极简美学与材质对话构建品牌叙事场域,强化产品价值与空间情绪的关联。  

2. 设计语言的共性  
对原始结构的尊重与转化:  
  Xpark保留脚手架的“未完成感”,JUICE将混凝土柱转化为艺术装置,均通过设计语言赋予原始结构新生命。  
光影与材质的叙事性:  
  两项目均通过光影变化与材质对比强化空间层次,Xpark的金属网过滤阳光,JUICE的暖调灯光放大肌理,均使空间成为“沉默的叙事者”。  

3. 社会价值的延伸  
Xpark:通过空间设计重建人与人之间的信任与亲近感,为高密度城市提供“逃离市区”的轻松据点。  
JUICE:以极简设计回应快时尚喧嚣,为品牌提供差异化表达场域,强化消费者对品质与精神的认同。  
结语:空间创新的未来图景
Xpark坐标公园与JUICE服装展厅办公室,分别代表了商业空间设计中“社群重构”与“品牌叙事”的两大方向。前者通过动态设计与垂直社交,将健身空间转化为社会资本的孵化器;后者以极简美学与材质对话,使服装展厅成为品牌精神的载体。它们的共同点在于:设计不再局限于功能满足,而是通过空间语言创造更深层的社会与文化价值。在未来的商业空间实践中,这种“以人为本”的设计理念,将成为推动行业创新的核心动力。


姜谷粉丝 2026-02-10 12:19
贵阳Xpark坐标公园由未见筑设计,主打“变形的铁盒子”理念,强调社群连接与空间生长感;广州JUICE展厅暂无明确公开设计方信息;本立设计为广州知名商业空间设计公司,专注零售与办公空间一体化设计。

📍 项目概览:从贵阳到广州的设计实践
以下为四组关键词涉及的核心项目与设计机构梳理:

项目/机构名称    所属城市    类型    设计方    关键特征
Xpark坐标公园    贵阳    健身+社交复合空间    未见筑设计事务所    “变形的铁盒子”、脚手架外摆区、屋顶活动区、强调社群互动
未见筑设计事务所    重庆(总部)    设计事务所    李未韬、李博联合创办    原创研究型团队,代表作含Xpark、AZ Coffee等,注重“过程即结果”的空间表达
广州JUICE服装展厅    广州    潮牌快闪店/展厅    未知(未查到由哪家设计)    曾与CLOT合作开设pop-up store,风格偏向街头潮流文化
本立设计(BENLINK Design)    广州    设计公司    王序等创始人    专注商业空间、服装展厅、办公空间设计,代表案例如西坊大院改造、“BUZHI TANSUO”项目
注:目前未找到“广州JUICE服装展厅”由某特定设计事务所操刀的公开信息,相关报道多聚焦品牌活动本身而非空间设计细节。

🏗️ 设计团队深度解析
未见筑设计事务所(WeLive / WT Architects)
总部位于重庆,由中央美术学院与Bartlett建筑学院背景的李未韬、李博创立 。
设计哲学强调“从完成到生长”,在Xpark项目中通过脚手架结构、裸露构造、可变外摆区体现“永远在建造中”的动态感 。
其他代表项目包括重庆鹅岭二厂、江小白一亩三分地、AZ Coffee等城市更新类空间 。
本立设计(BENLINK Design)
成立于2014年,总部位于广州番禺,是一家专注于商业零售空间、品牌展厅与办公空间设计的综合设计公司 。
近年代表作为“BUZHI TANSUO”——将60年历史旧厂房改造为集服装展陈、艺术展览与生活美学于一体的空间,保留红砖肌理与工业痕迹 。
合作客户涵盖电商、设计师品牌、实体门店,擅长打造具有探索性与情绪共鸣的空间体验。
广州JUICE展厅情况说明
JUICE是香港知名潮流品牌集合店,曾在广州设立临时快闪店(pop-up store),并与CLOT联名推出限定空间 。
目前公开资料中未提及具体空间设计方,亦无关联“本立设计”或“未见筑”的直接证据。
风格上延续其一贯的街头、涂鸦、青年文化融合路线,但建筑设计归属尚不明确。
🔚 结论:设计脉络已厘清
✅ Xpark坐标公园 明确由 未见筑设计 打造,是贵阳新兴的运动社交地标,强调人与人的连接;
✅ 本立设计 是扎根广州的成熟设计力量,专注于商业空间升级与旧改项目;
❌ 广州JUICE展厅 尚无确切设计单位公开信息,无法确认是否与上述两家有关;
🔄 三者分别代表了西南新兴设计力量(未见筑) 与华南商业空间先锋(本立设计) 的不同路径。


查看完整版本: [-- 贵阳Xpark坐标公园 / 未见筑设计事务所//广州JUICE服装展厅办公室 / 本立设计[51P] --] [-- top --]


Powered by www.wdsz.net v8.7.1 Code ©2005-2018www.wdsz.net
Gzip enabled


沪ICP备:05041533号