查看完整版本: [-- IINC: The Fashion District / 泛域设计Fununit Design&More//ROCK&RIDE 上海前滩太古里店 / WBS里外工作室[56P] --]

武当休闲山庄 -> 无奇不有 -> IINC: The Fashion District / 泛域设计Fununit Design&More//ROCK&RIDE 上海前滩太古里店 / WBS里外工作室[56P] [打印本页] 登录 -> 注册 -> 回复主题 -> 发表主题

jjybzxw 2026-03-04 11:23
IINC: The Fashion District / 泛域设计Fununit Design&More[22P]


“我们试图在厚重的地质感与轻盈之间寻找一种微妙的平衡。空间不应仅仅是服装的容器,更应是品牌精神的物质化显影——既有经典时尚的质感,又有当下审美的风格。”
IINC 立意于成为独立自信的全新个体 BE YOURSELF,BE SMART。作为大型综合性先锋买手店,精选全球500+设计师品牌,线上线下多平台运营,为大众提供精准购物服务和大胆多元零售体验。
“ I 自我 · Independent 独立 · New全新 · Confident 自信 ”审视自我并赋予自我全新的面貌,享受独特独立的个体的自性感。
开放性的空间,人们可以无束缚的选择个人审美需求,回归于欧洲时尚起源之都的色彩材质印象,我们此次为买手店iinc打造的全新商业空间,用极简的材质,在有限的场域内构建了一处关于“地质与架构”的微型时尚街区。

空间叙事:流动的网格与消隐的边界
包容与共存,个体思维与审美是无阶级差异的,以产品的无差别与平等展示为核心,开放的空间接纳不同品牌的气质。

“流动的网格”成为了定义动线的核心要素,这些带有工业滑轮的网格装置,既是陈列道具,又是空间的半透明取景框。它们依据需求自由开合,使空间能够在“紧凑的陈列模式”与“开敞的秀场模式”之间灵活切换。





为了化解场地内原本存在的结构柱与死角,镜像策略被大面积运用,我们用镜子包裹了立柱与墙体端头,利用光学反射原理,将原本厚重的红洞石横向延展,制造出一种“无限延伸”的错视效果。

不同的独立区域置入于整体空间中,可沉浸式体验多个打卡空间。如果你低头审视,会发现部分地面铺设的深褐色地毯上,散布着白色的短线条与解构的“C”字符号。这是品牌在三维空间中的碎片化投射,更像是一张由于镜面折射而变得难以捉摸的地图,指引着访客在真实与虚幻的边界中穿梭。



地质与构架的二重奏
这个时尚街区的主视觉被两种截然不同的物质属性所占据:一种是代表古典时尚、与时间沉淀的天然红洞石、米洞石;另一种是代表现代、工业与秩序构建的薄荷绿金属架构。


一些材质的特殊尝试,在理性、工业、与柔韧自由中找到新的表达:平面的柔性毛毡,切割后拉伸成成为一面面柔性的屏障,可分隔,可穿透,且给予衣服最为柔和的隔断。


这不仅仅是色彩上的互补,更是触感与维度的交融。红洞石的孔隙肌理暗示着自然界的无序生长,而薄荷绿的金属网格则象征着人工的绝对理性,成为在“经典”与“先锋”之间游走的商业逻辑。



人文互动:非固态的商业场景
IINC的空间设计超越单纯的售卖功能,它更像是一个鼓励探索的社交场域。半开放的网格创造了一种“看与被看”的暧昧关系——顾客在挑选衣物时,身影在网格与镜面中若隐若现,成为了空间动态叙事的一部分。


这种非固态的、可生长的空间特质,恰恰回应了当代实体商业空间的核心诉求:在流量时代,体验不再源于琳琅满目的商品堆砌,而源于置身于某种独特“场域精神”中的感官沉浸。
结语
这是一次色彩与材料建构逻辑的实验,将一个原本可能沉闷的零售单元,转化为一处的可变化的街区。在这里,红色与绿色、粗糙与精致、瞬间与永恒达成了某种奇妙的和解。
项目图纸

项目名称 | IINC: The Fashion District
设计公司 | 泛域设计Fununit Design&More
主案设计 | 朱啸尘
硬装设计 | 柴尔焕 谢宜臻 邓可昇
软装设计 | 陈琳 吴雨昕
视觉设计 | 胡晓娴
空间主材 | 红洞石 金属 毛毡布 柚木色板 岩板
摄影摄像 | 奥观建筑视觉Aogvision
项目地址 | 中国 杭州
项目规模 | 207㎡
完工时间 | 2026/01
========================================================================================================================================

ROCK&RIDE 上海前滩太古里店 / WBS里外工作室[34P]


设计策略

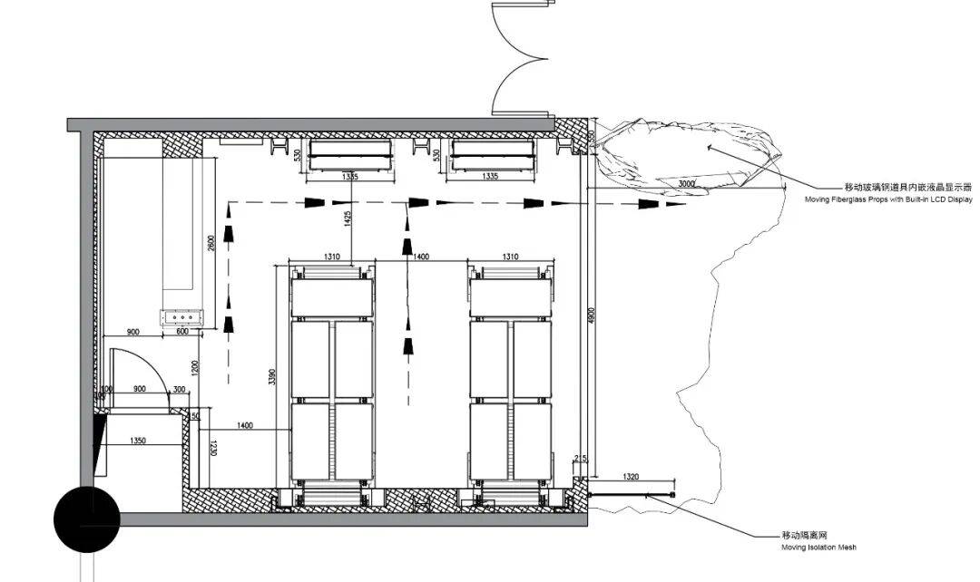
“矿地骑士”是Rock&Ride店铺宇宙中的一个概念店。我们将首饰的诞生想象成矿石开采的过程,开采-荒料加工-板材抛光-加工。店铺设计意在通过材质和道具的铺陈让人置身在这个开采流程里,饰品和道具矿石以及生产传动装置形成一种完成与未完成的动态对话。重工业构件直接粗暴介入店铺空间,改装成商品展示道具,原汁原味的磷板传送机和工业构件给消费者带来的震撼。






将店内吊顶改造为矿场坡屋顶形式,并置入耐候钢梁柱体系形成空间结构。店铺两侧置入矿石开采装饰,形成空间主题。将磷板传送机改装为银饰展示台面。玻璃展柜采用滑轮与磷板传送机传动系统连接,可以根据实际使用需求左右滑动调整展示姿态。磷板延伸至墙面,暗示原料矿石的传送流线。空中悬挂下料口,形成空中主视觉。






在材质运用上,选用红色水洗石塑造店铺主体界面,形成强烈的视觉冲击力。标志性的红色亦传递出品牌蕴含的激情与热爱。空间布局置入源于矿场、未加修饰的工业构件,如筛石斗笠、墙面橱窗等,同时将鳞板传送机的结构元素转化为展柜系统,成为空间视觉焦点。






我们尤为注重道具设计,其作为连接产品尺度与空间尺度的媒介,被视作微型尺度的建筑进行构思。例如鳞板传送机展柜系统,以三段式构图、建筑化的形态语言,结合沉稳的基座与轻盈的玻璃体块;以及在工字钢柱体上,采用角钢与螺栓固定装饰镜等细节处理,均体现出建筑设计的逻辑与手法。






项目图纸








项目名称:ROCK&RIDE 上海前滩太古里店
项目类型:零售商业
设计方:WBS里外工作室
项目完成时间:2024.9月
建筑面积: 47㎡
项目地址: 上海前滩太古里S-B1-23
主创设计师: 张哲
设计团队: 侯飞,张海莹,王啸宇
摄影师: 云眠工作室
委托方: ROCK&RIDE
材料:艺术漆,耐候钢,水洗石

jjybzxw 2026-03-04 11:26
IINC: The Fashion District 与 ROCK&RIDE 上海前滩太古里店:时尚零售空间设计的创新探索
IINC: The Fashion District —— 地质与构架的微型时尚街区

设计理念与品牌精神
IINC 作为大型综合性先锋买手店,立意于成为独立自信的全新个体,精选全球500+设计师品牌,提供精准购物服务和大胆多元零售体验。其设计理念在于在厚重的地质感与轻盈之间寻找平衡,将空间视为品牌精神的物质化显影,既有经典时尚的质感,又融入当下审美的风格。

空间叙事与动线设计
流动的网格与消隐的边界:项目采用“流动的网格”作为定义动线的核心要素,这些带有工业滑轮的网格装置既是陈列道具,又是空间的半透明取景框,可依据需求自由开合,实现空间在“紧凑陈列模式”与“开敞秀场模式”之间的灵活切换。
镜像策略的运用:为化解场地内的结构柱与死角,大面积运用镜像策略,用镜子包裹立柱与墙体端头,利用光学反射原理制造“无限延伸”的错视效果,增强空间的开阔感。

地质与构架的二重奏
材质对比与交融:空间主视觉由天然红洞石、米洞石与薄荷绿金属架构构成,红洞石的孔隙肌理暗示自然界的无序生长,而金属网格则象征人工的绝对理性,形成“经典”与“先锋”之间的对话。
特殊材质尝试:平面的柔性毛毡被切割拉伸成柔性屏障,既可分隔空间又可穿透,为衣物提供柔和的隔断,展现材质在理性与柔韧自由间的新表达。

人文互动与非固态商业场景
社交场域的营造:IINC的空间设计超越单纯售卖功能,成为鼓励探索的社交场域。半开放的网格创造“看与被看”的暧昧关系,顾客身影在网格与镜面中若隐若现,成为空间动态叙事的一部分。
场域精神的沉浸体验:非固态的、可生长的空间特质回应了当代实体商业空间的核心诉求,即体验源于置身于独特“场域精神”中的感官沉浸,而非商品堆砌。
ROCK&RIDE 上海前滩太古里店 —— 矿地骑士的开采之旅

设计策略与概念店构思
ROCK&RIDE店铺以“矿地骑士”为概念,将首饰的诞生想象成矿石开采的过程。设计通过材质和道具的铺陈,让人置身于开采流程中,饰品、道具矿石与生产传动装置形成动态对话,展现完成与未完成的对比。

空间结构与主题营造
矿场坡屋顶与耐候钢梁柱体系:店内吊顶改造为矿场坡屋顶形式,置入耐候钢梁柱体系形成空间结构,两侧置入矿石开采装饰,形成空间主题。
磷板传送机的改装与应用:磷板传送机被改装为银饰展示台面,玻璃展柜采用滑轮与传动系统连接,可左右滑动调整展示姿态。磷板延伸至墙面,暗示原料矿石的传送流线,空中悬挂下料口形成主视觉。

材质运用与视觉冲击
红色水洗石的主体界面:选用红色水洗石塑造店铺主体界面,形成强烈视觉冲击力,标志性红色传递品牌蕴含的激情与热爱。
工业构件的粗暴介入:空间布局置入源于矿场、未加修饰的工业构件,如筛石斗笠、墙面橱窗等,同时将鳞板传送机的结构元素转化为展柜系统,成为空间视觉焦点。

道具设计与建筑化构思
微型尺度的建筑构思:道具设计作为连接产品尺度与空间尺度的媒介,被视作微型尺度的建筑进行构思。如鳞板传送机展柜系统采用三段式构图、建筑化的形态语言,结合沉稳基座与轻盈玻璃体块。
细节处理的建筑设计逻辑:在工字钢柱体上采用角钢与螺栓固定装饰镜等细节处理,均体现出建筑设计的逻辑与手法,增强道具的设计感与实用性。


姜谷粉丝 2026-03-04 12:26
一、IINC白色广场 | 泛域设计
设计核心:极简艺术馆式体验

空间叙事:以纯白色调与弧形拱门构筑"艺术广场"概念,通过拱门引导动线至中央展陈区,强化仪式感。
材质语言:大面积微水泥墙面搭配金属展架,粗糙肌理与精致服饰形成质感碰撞,凸显商品独特性。
体验设计:嵌入式LED灯带模拟自然光变化,营造"广场日落"氛围,提升沉浸式购物情绪。
二、ROCK&RIDE上海前滩太古里店 | WBS里外工作室
设计核心:音乐基因的潮流据点

主题符号:工业风金属网隔断与霓虹灯管,呼应摇滚乐的反叛精神;定制机车装置作为视觉焦点,强化品牌调性。
互动体验:试衣区内置环绕音响系统,结合镜面互动投影,消费者可录制"虚拟演唱会"短视频。
社群运营:二层设置黑胶唱片展售区与音乐人快闪舞台,打造跨界文化社群空间。
三、华为旗舰店·前滩太古里 | 未知设计方
设计核心:科技与自然共生

建筑形态:16米叶片造型外立面象征"种子生长",无棱角曲面结构传递生态友好理念。
场景融合:一层全场景产品区搭配旋转汽车展台,二层咖啡休憩区植入AR许愿树,平衡科技与人文。
服务细节:独立宠物休息区与导视台无线充电装置,深化人性化服务标签。
四、设计策略对比
项目    叙事主题    体验创新点    目标人群
IINC白色广场    艺术殿堂    光影情绪场景    高端时尚收藏者
ROCK&RIDE    亚文化图腾    音乐可视化交互    青年潮流社群
华为前滩店    科技生态学    多功能公共客厅    家庭及科技爱好者
差异化总结:

IINC以"白"为画布,让商品成为空间艺术品;
ROCK&RIDE用工业语言解构音乐场景,激活社群认同;
华为通过建筑与自然对话,重构科技零售的温情维度。


查看完整版本: [-- IINC: The Fashion District / 泛域设计Fununit Design&More//ROCK&RIDE 上海前滩太古里店 / WBS里外工作室[56P] --] [-- top --]


Powered by www.wdsz.net v8.7.1 Code ©2005-2018www.wdsz.net
Gzip enabled


沪ICP备:05041533号